- Tom · (+32) 499 26 26 19
- Hanne · (+34) 679 382 809
Ontdek deze exclusieve nieuwbouwwoningen in het charmante stadje Benijófar, een van de meest gewilde gebieden aan de Costa Blanca. Benijófar combineert traditie met moderne voorzieningen, zoals supermarkten, apotheken, banken, restaurants en lokale winkels. Het project ligt op slechts 10 km van de gouden stranden van Guardamar del Segura en 30 km van de luchthaven van Alicante, ideaal voor permanente bewoning of vakantieverblijven.
Ruim en modern ontwerp
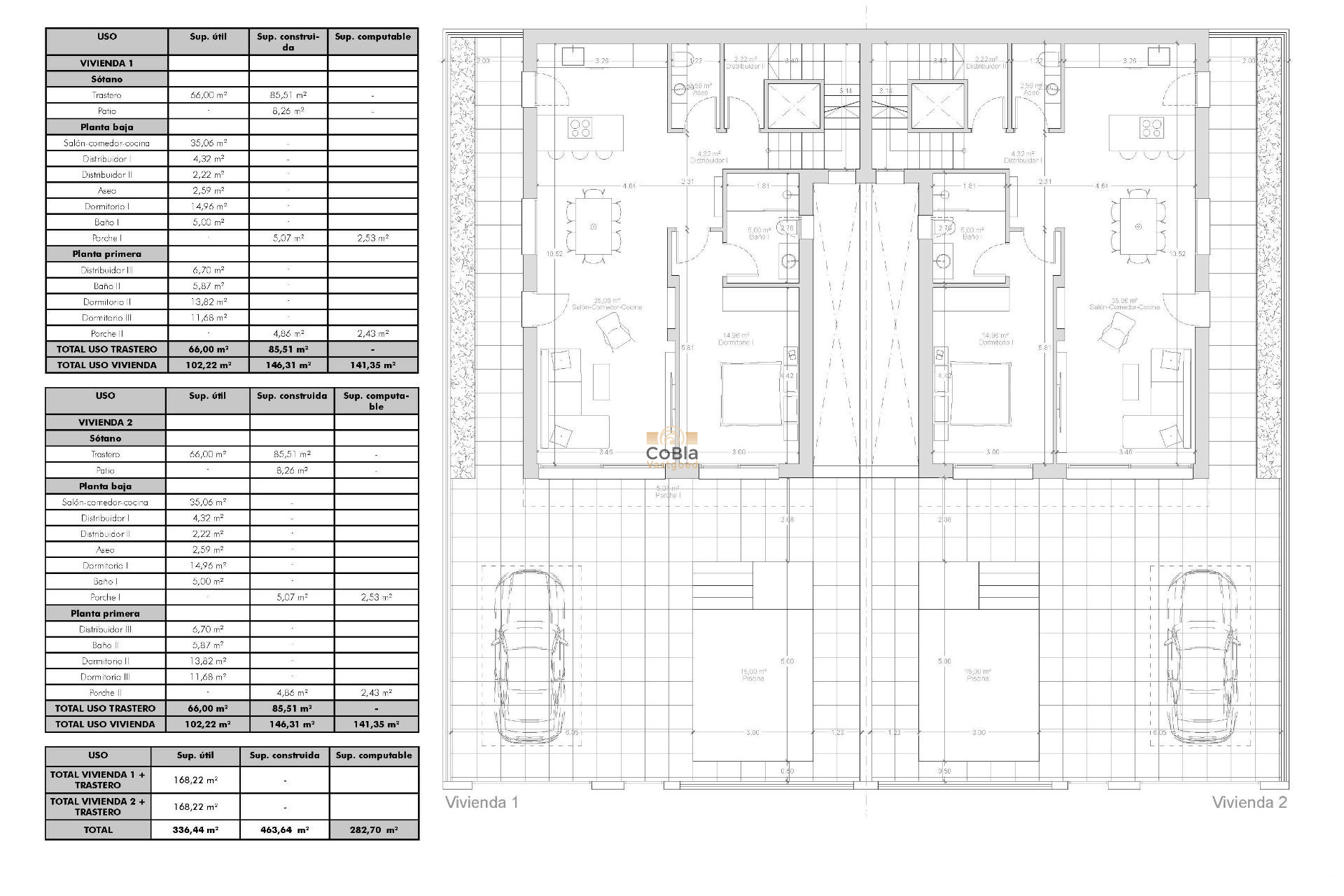
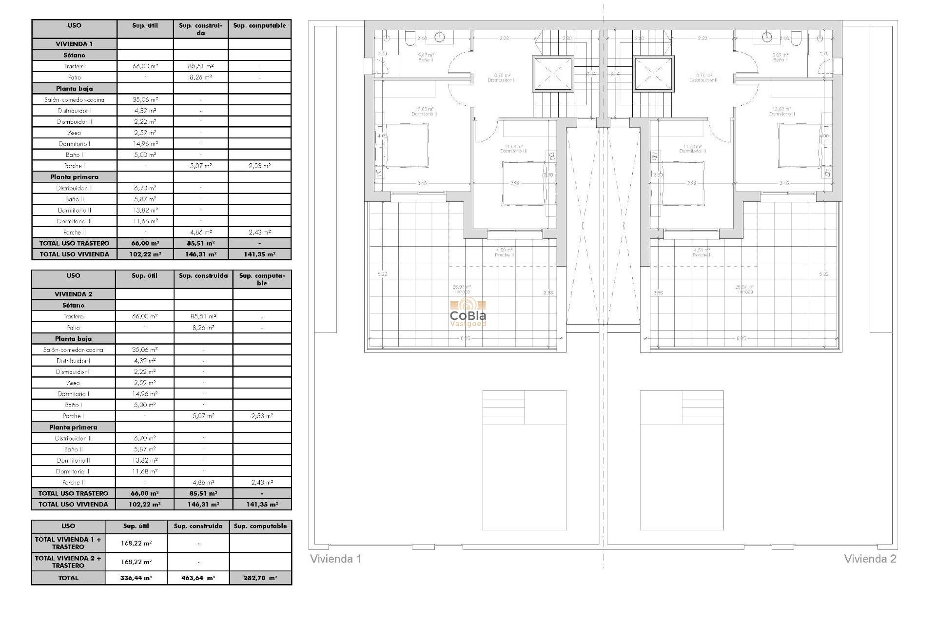
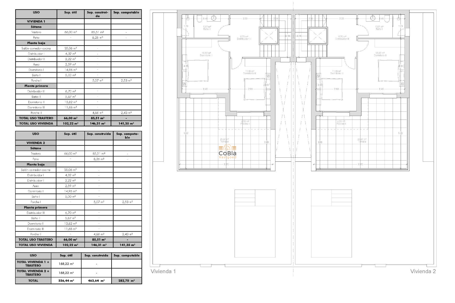
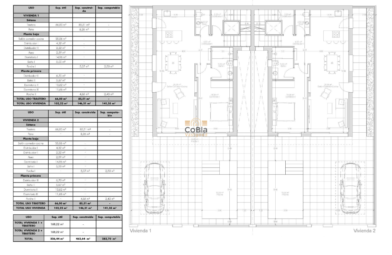
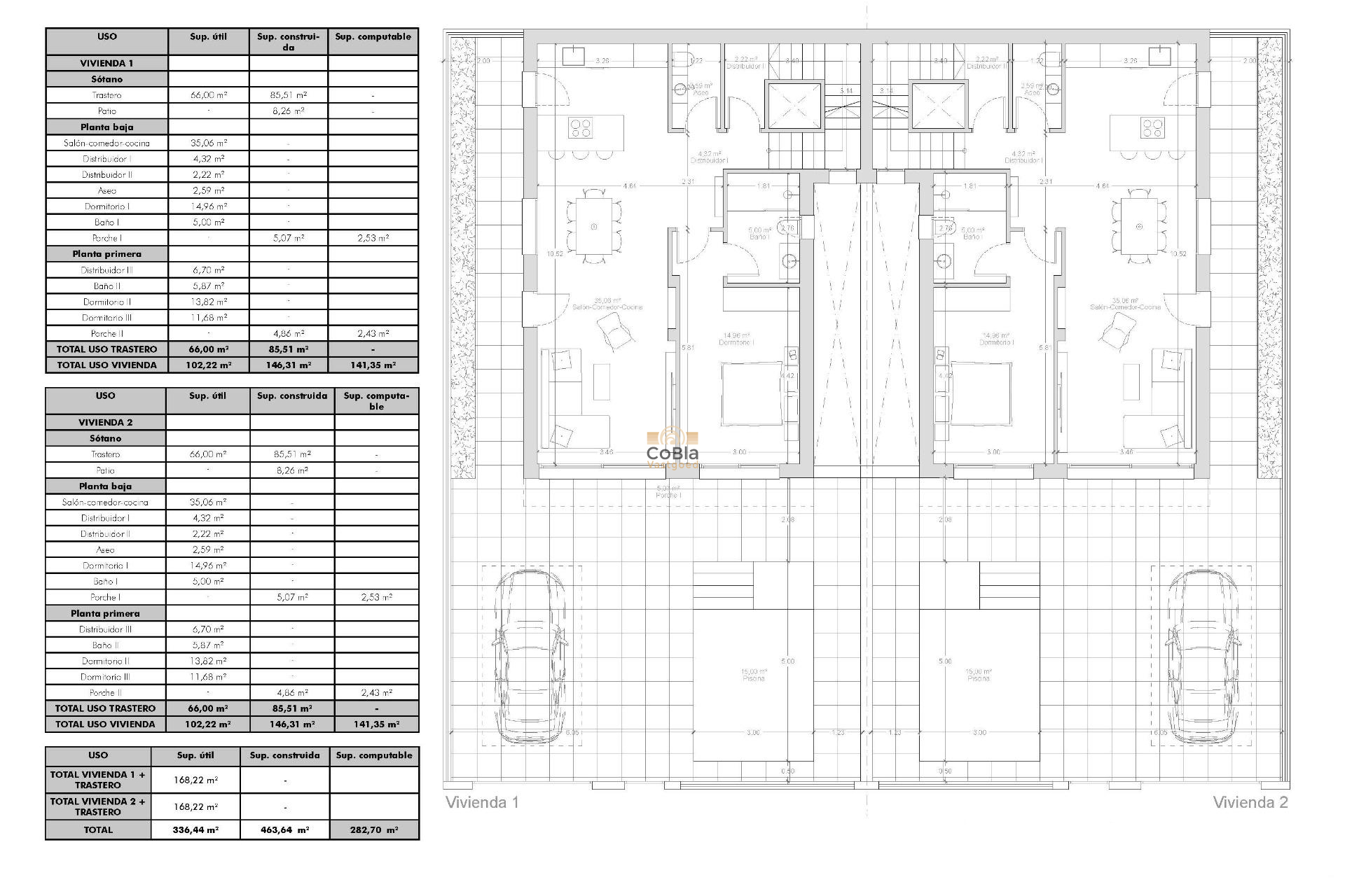
Elke villa is eigentijds ontworpen met optimaal gebruik van ruimte en natuurlijk licht. De indeling bestaat uit 3 slaapkamers (1 op de begane grond, 2 op de eerste verdieping) en 3 badkamers (waarvan 1 in de kelder), perfect voor gezinnen en gasten. De open woonkamer met eethoek loopt naadloos over in de volledig uitgeruste keuken. Grote ramen zorgen voor veel lichtinval en een warme, uitnodigende sfeer.
Premium voorzieningen en extra’s
Deze villa’s bieden hoogwaardige afwerking en slimme details:
66 m² kelder met badkamer, galerij en wasruimte
Privézwembad en solarium met barbecue en gootsteen
Decoratieve open haard in de woonkamer
Privéparkeerplaats op het perceel
Lift van kelder tot bovenste verdieping
3 fotovoltaïsche zonnepanelen en ledverlichting
Voorbereiding voor airconditioning
Volledig ingerichte badkamers met meubels en douchewanden
Perceelgroottes vanaf 200 m²
Ligging
Benijófar biedt de charme van een traditioneel Spaans dorp met moderne gemakken. Natuurliefhebbers genieten van het nabijgelegen natuurpark, terwijl golfers La Marquesa Golf op slechts 5 km vinden. Andere topbanen liggen binnen 15 km. Gezinnen kunnen waterparken bezoeken in Rojales (4 km) en Torrevieja (12 km), of de levendige stad Torrevieja verkennen.
Met gemakkelijke toegang tot de N-332 en AP-7 bent u snel in Alicante, Elche, Orihuela Costa en Murcia. Deze locatie biedt de perfecte balans tussen rust, voorzieningen en bereikbaarheid.
Uw droomhuis aan de Costa Blanca
Ervaar luxe, comfort en het mediterrane leven in deze prachtige nieuwbouwwoningen in Benijófar. Neem vandaag nog contact met ons op voor meer informatie en zet de eerste stap naar uw droomhuis.