- Tom · (+32) 499 26 26 19
- Hanne · (+34) 679 382 809
Découvrez ces maisons neuves exclusives dans la charmante ville de Benijófar, l’une des zones les plus recherchées de la Costa Blanca. Benijófar combine tradition et commodités modernes, telles que supermarchés, pharmacies, banques, restaurants et commerces locaux. Le projet est situé à seulement 10 km des plages dorées de Guardamar del Segura et à 30 km de l’aéroport d’Alicante, idéal pour une résidence principale ou des vacances.
Design spacieux et moderne
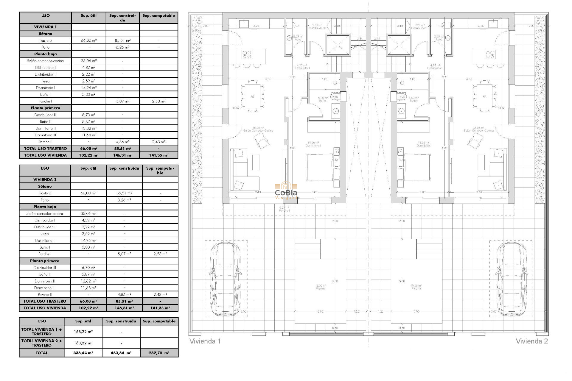
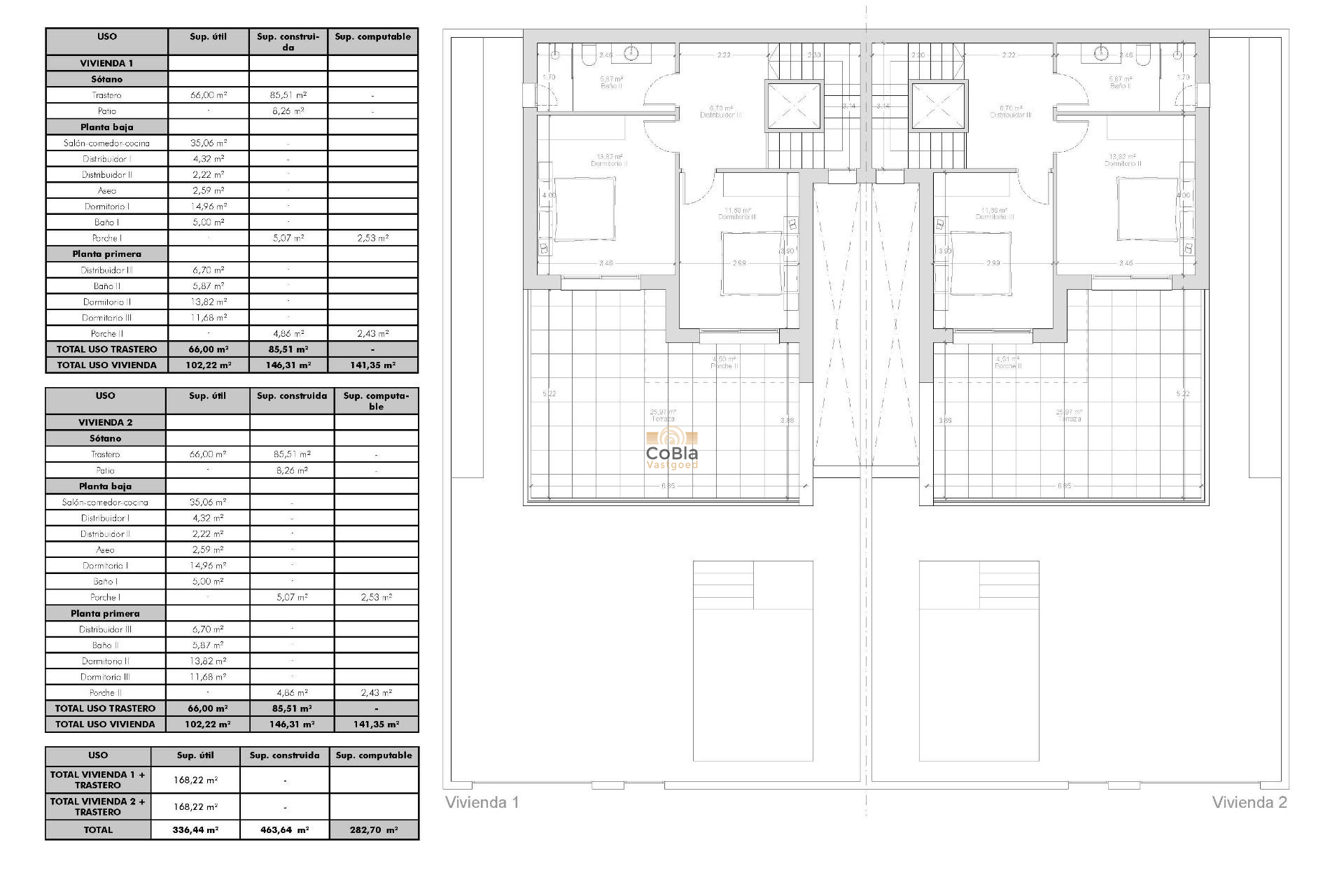
Chaque villa est conçue dans un style contemporain avec un maximum d’espace et de lumière naturelle. La disposition comprend 3 chambres (1 au rez-de-chaussée, 2 au premier étage) et 3 salles de bains (dont 1 au sous-sol), parfait pour les familles et les invités. Le salon et la salle à manger ouverts s’intègrent parfaitement à la cuisine entièrement équipée. De grandes fenêtres apportent lumière et chaleur dans toute la maison.
Prestations et extras premium
Ces villas se distinguent par leurs finitions haut de gamme et leurs détails réfléchis :
Sous-sol de 66 m² avec salle de bains, galerie et buanderie
Piscine privée et solarium avec barbecue et évier
Cheminée décorative dans le salon
Parking privé sur le terrain
Ascenseur du sous-sol au dernier étage
3 panneaux solaires photovoltaïques et éclairage LED
Préparation pour climatisation
Salles de bains entièrement équipées avec meubles et parois de douche
Tailles de parcelles à partir de 200 m²
Mode de vie et environnement
Benijófar combine le charme d’un village espagnol traditionnel avec le confort moderne. Les amoureux de la nature peuvent profiter du parc naturel à proximité, tandis que les golfeurs ont La Marquesa Golf à seulement 5 km. D’autres parcours de premier plan se trouvent dans un rayon de 15 km. Les familles peuvent visiter les parcs aquatiques de Rojales (4 km) et Torrevieja (12 km) ou explorer la ville animée de Torrevieja.
Excellente accessibilité
Avec un accès facile à la N-332 et à l’AP-7, Alicante, Elche, Orihuela Costa et Murcia sont rapidement accessibles. L’emplacement offre un parfait équilibre entre tranquillité, commodités et accessibilité.
Votre maison de rêve sur la Costa Blanca
Vivez le luxe, le confort et le mode de vie méditerranéen dans ces magnifiques maisons neuves à Benijófar. Contactez-nous dès aujourd’hui pour plus d’informations et faire le premier pas vers votre maison de rêve.