- Tom · (+32) 499 26 26 19
- Hanne · (+34) 679 382 809
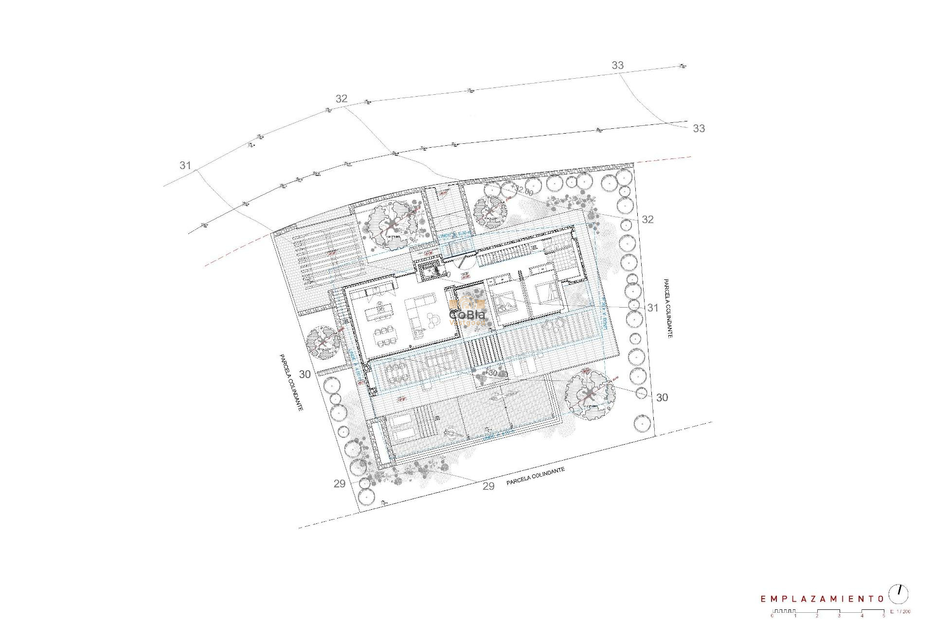
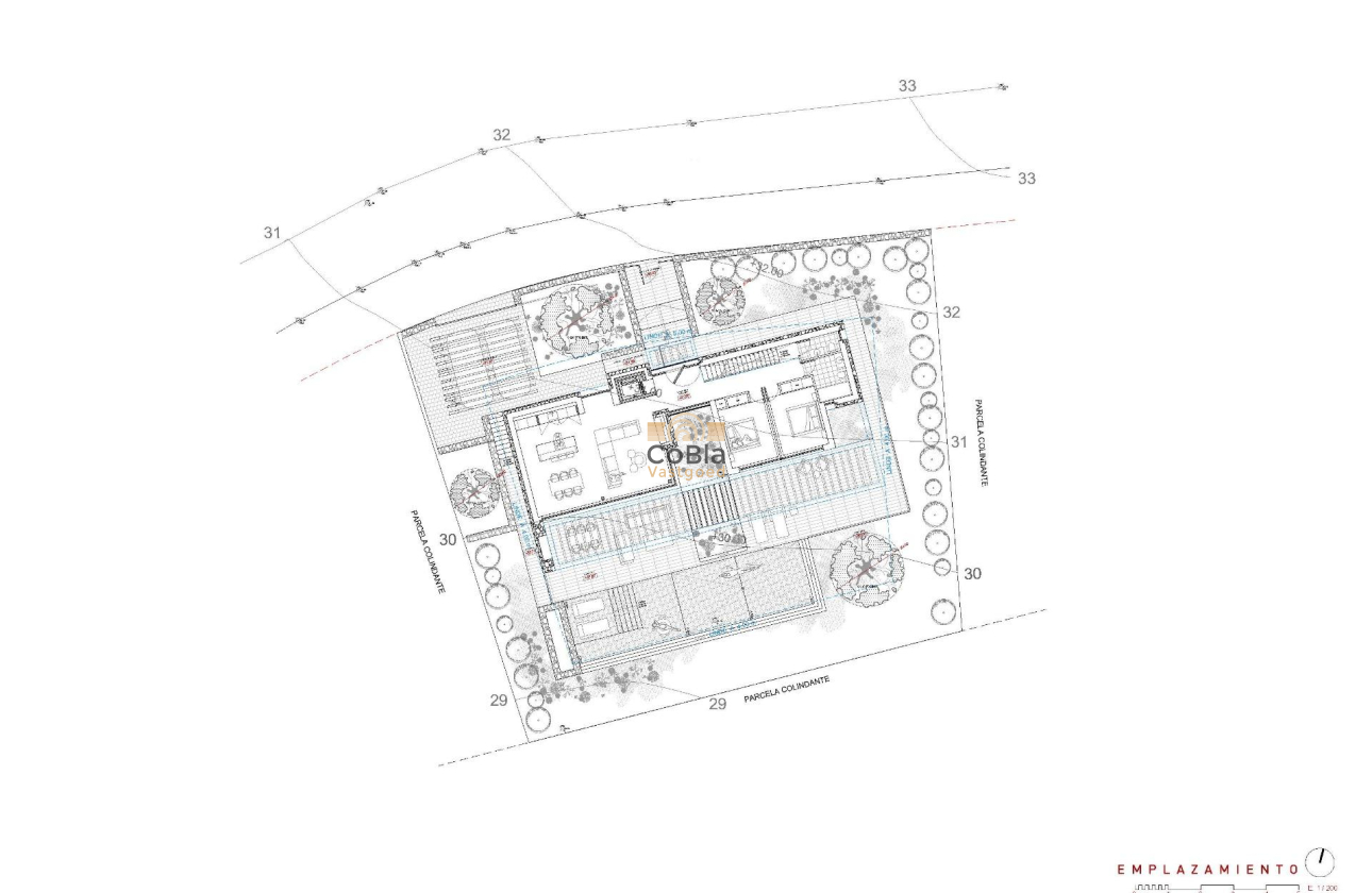
This exclusive new build villa in La Fustera, designed by a renowned architect and developed by a local developer with over 20 years of experience, sits on an 800 m² plot just 150 m from the beach.
The villa blends Mediterranean warmth with contemporary elegance, using natural stone, wood, and soft neutral tones, perfectly integrated into the coastal landscape. With a total built area of 716 m² across the basement, ground floor, and first floor, it offers the ideal balance of design, functionality, and comfort.
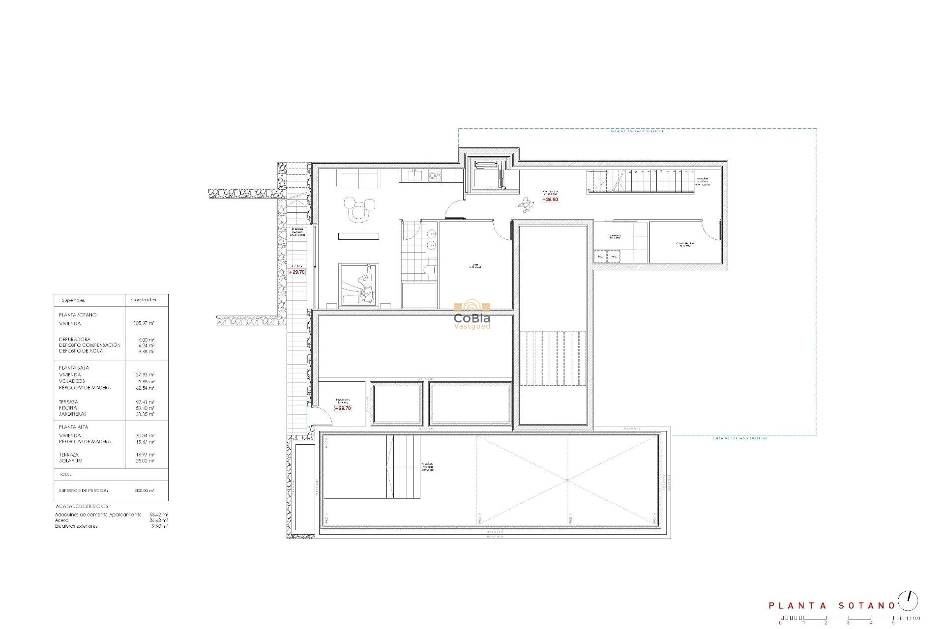
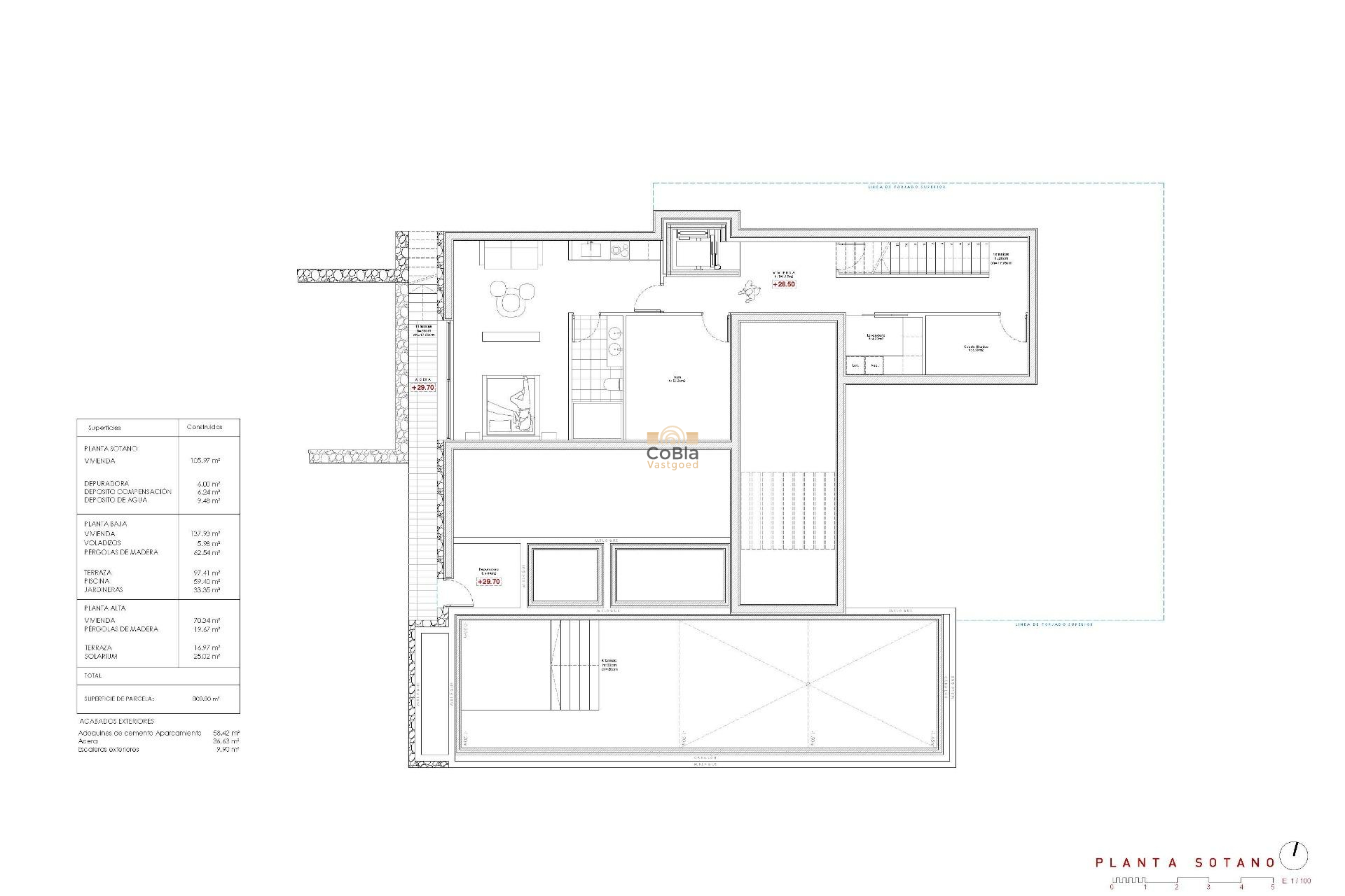
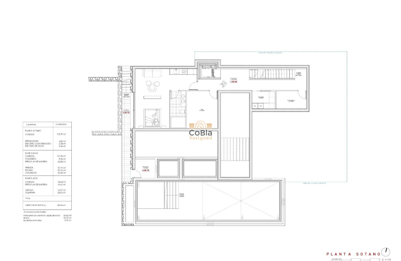
Basement
The 105.97 m² basement includes a fully equipped gym, laundry and technical rooms, with space for a wine cellar, cinema, or multifunctional area. It also houses the swimming pool filtration system and water tanks for efficient management.
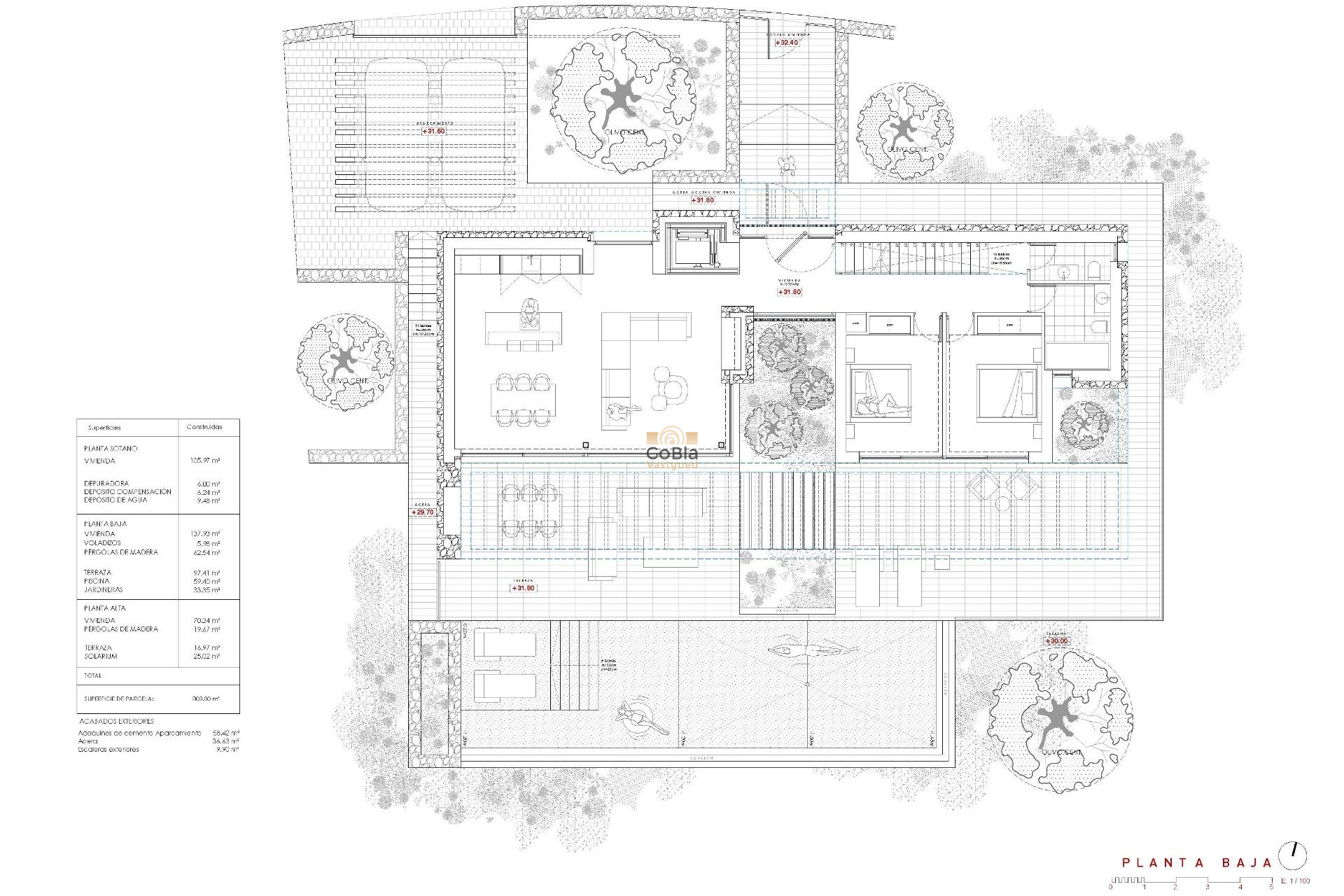
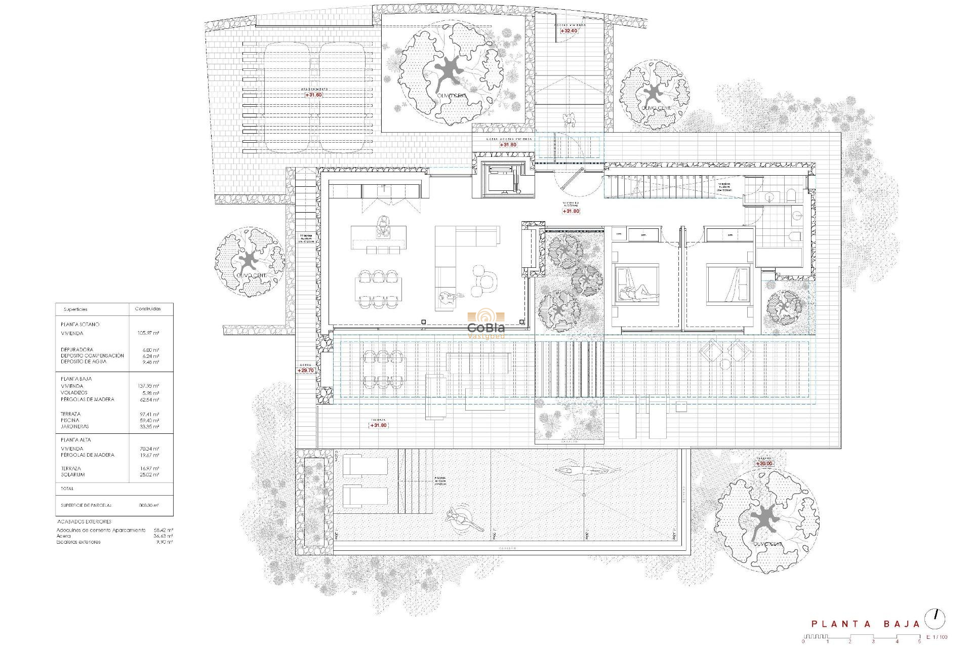
Ground Floor
The 137.93 m² main floor features a bright, open layout with living, dining, and kitchen areas opening onto the main terrace and the 59.40 m² infinity pool, boasting panoramic sea views.
There are two double bedrooms, a full bathroom, and a guest toilet. Outside, a wooden pergola, sun terraces, and lush gardens create the perfect outdoor living space.
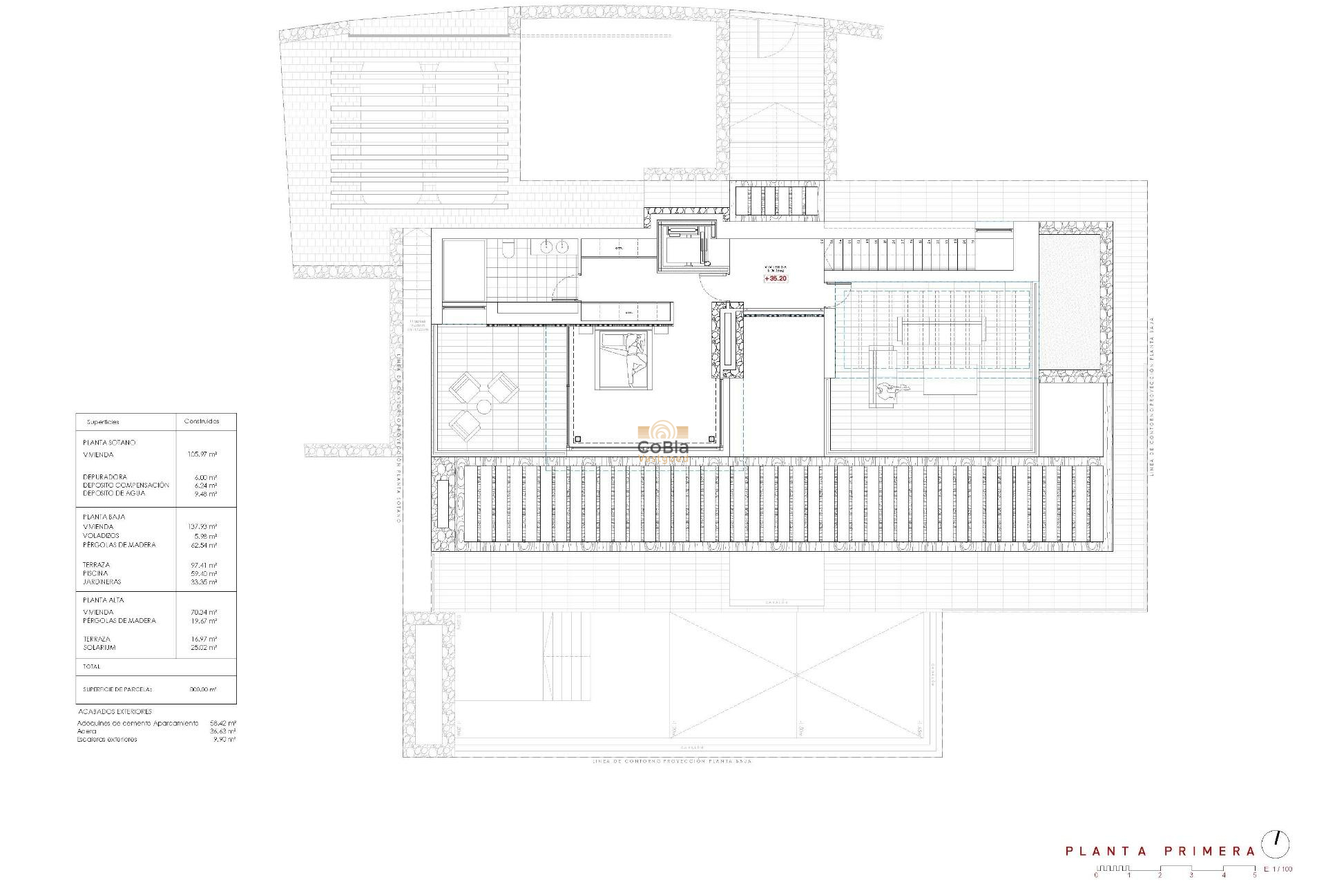
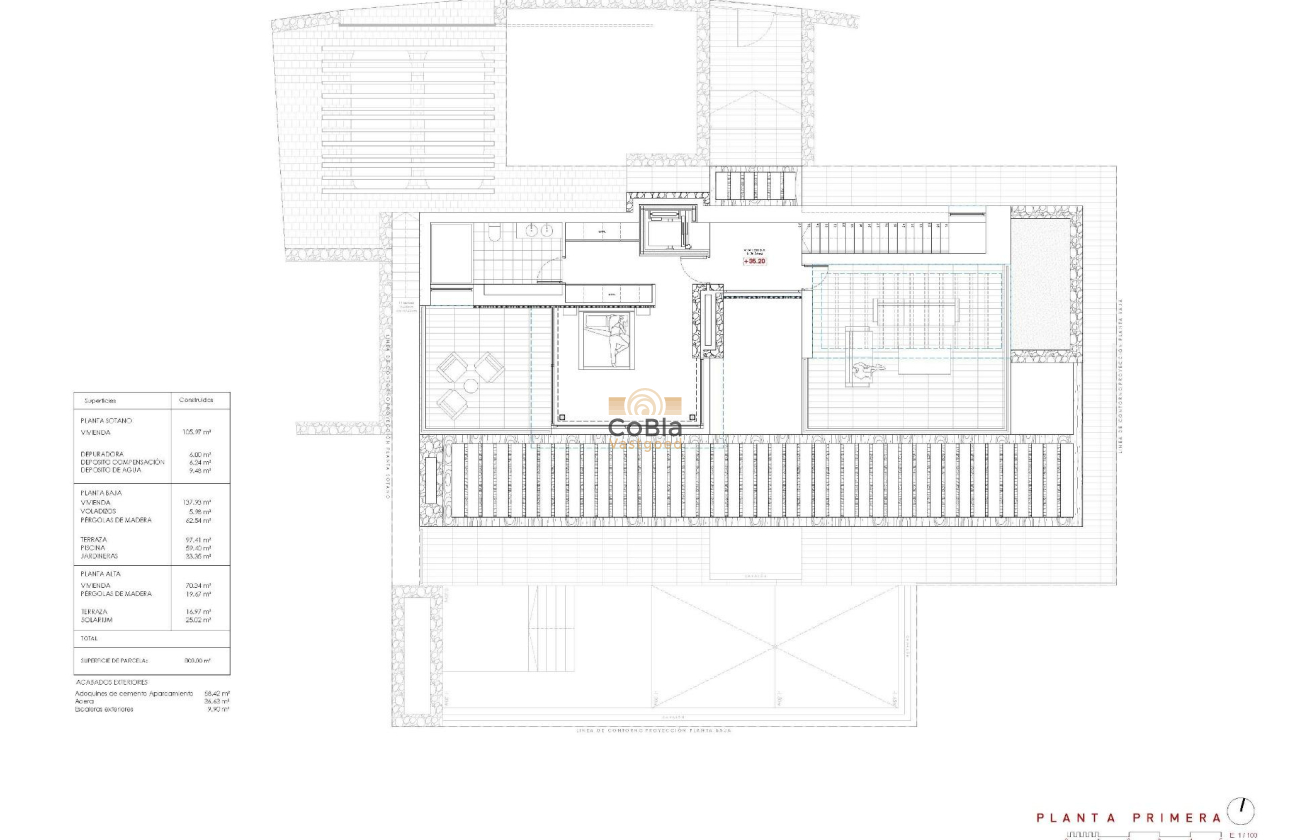
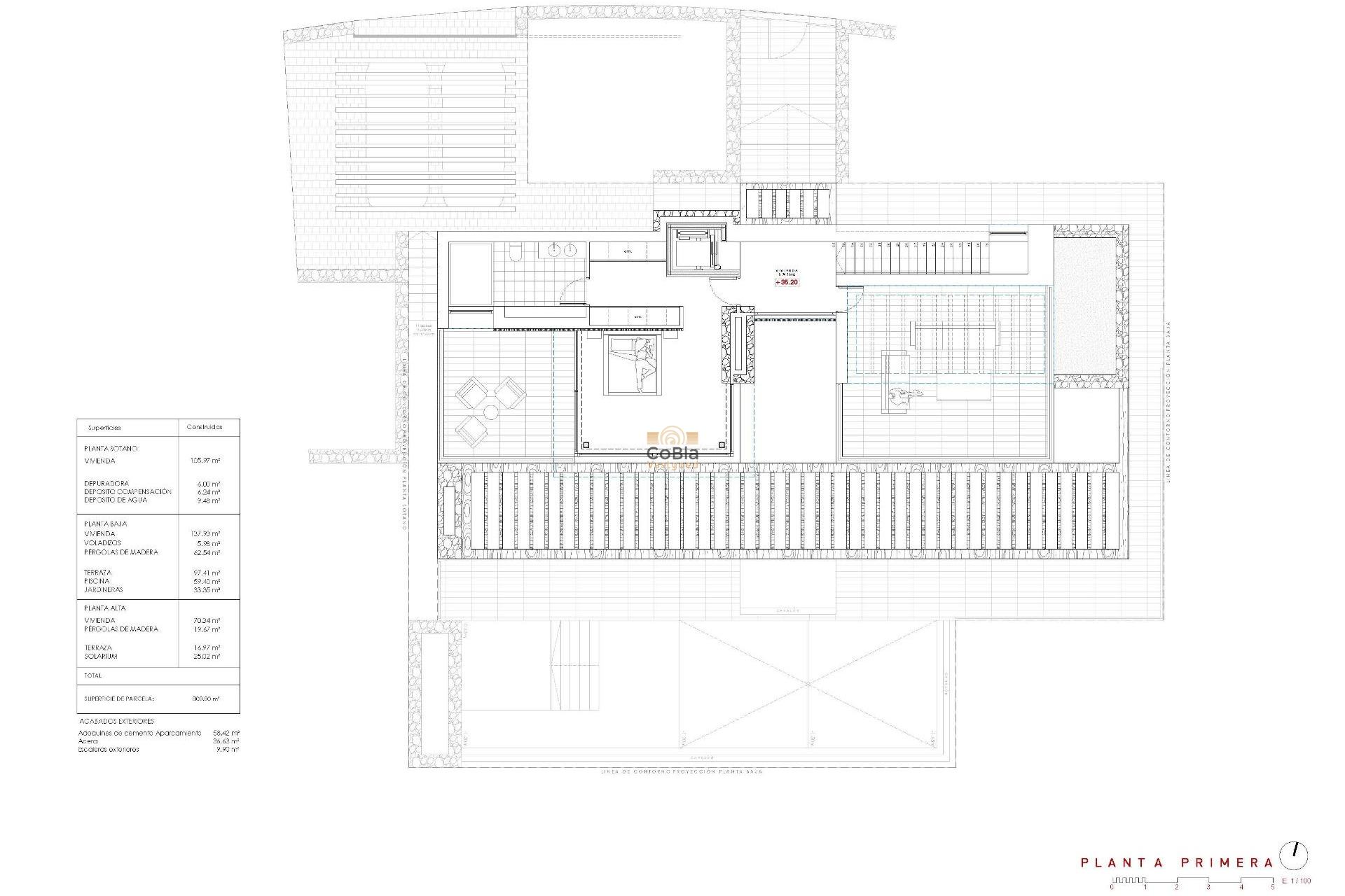
First Floor
The 70.19 m² upper floor is dedicated to the master suite with walk-in closet, en-suite bathroom, and private terrace overlooking the sea. A second bedroom or office completes this floor, with access to a 25.02 m² solarium to enjoy the sun and tranquility.
Exterior and Location
Situated in a quiet street among modern villas, just 3 minutes’ walk to La Fustera beach, Mandala Beach Bar & Restaurant, and essential services.
This villa emphasizes light, space, and seamless indoor-outdoor living, embodying the modern Mediterranean lifestyle: elegant, relaxed, and in harmony with panoramic sea views.
💬 Secure your dream villa in La Fustera, Benissa Costa and embrace the ultimate Mediterranean lifestyle with breathtaking views and unmatched comfort.
CoBla Real Estate will help you find the right property!