- Tom · (+32) 499 26 26 19
- Hanne · (+34) 679 382 809
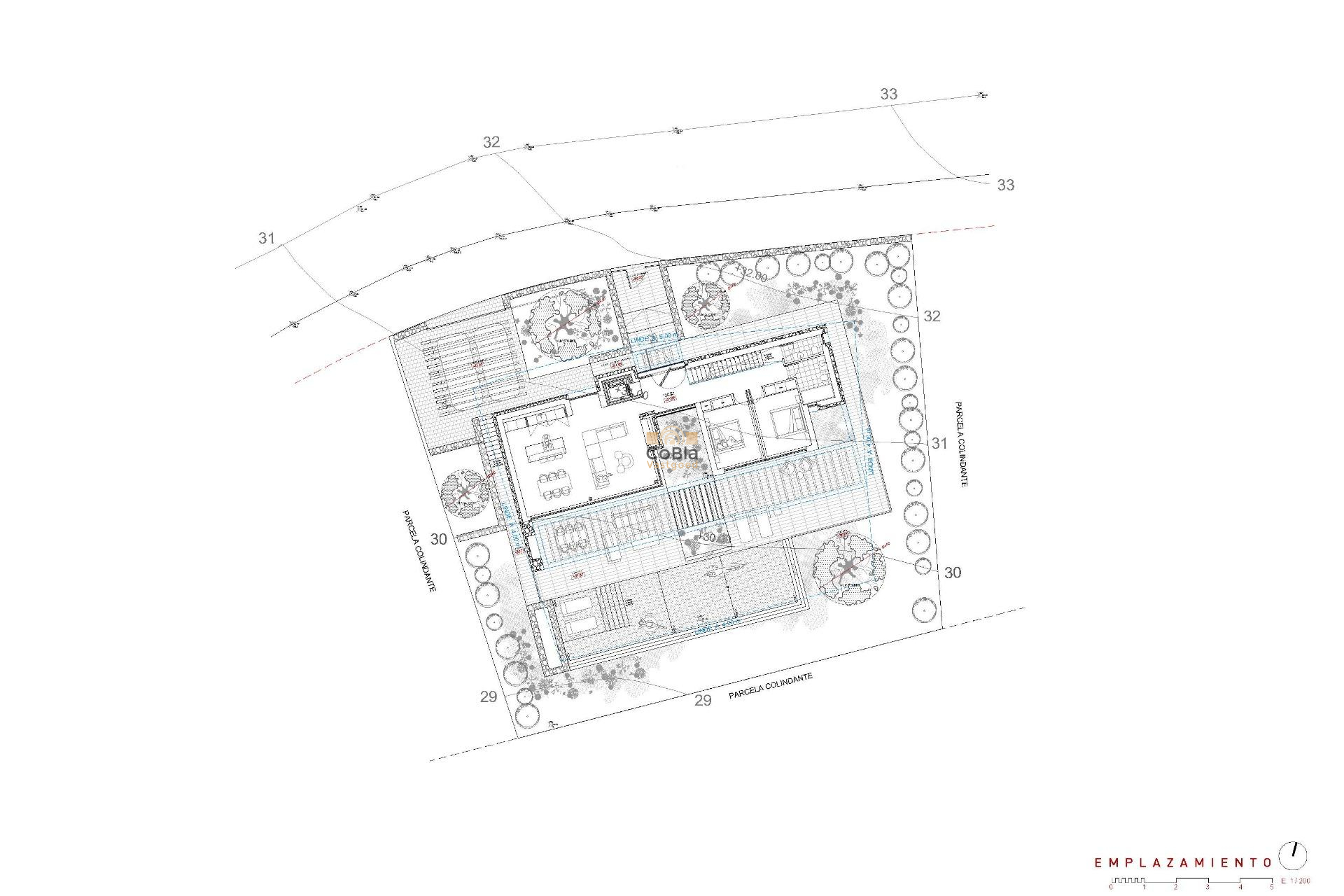
Cette villa neuve exclusive à La Fustera, conçue par un architecte renommé et développée par un promoteur local avec plus de 20 ans d’expérience, se situe sur un terrain de 800 m² à seulement 150 m de la plage.
La villa allie chaleur méditerranéenne et élégance contemporaine, utilisant pierre naturelle, bois et tons neutres, s’intégrant parfaitement dans le paysage côtier. Avec une surface construite totale de 716 m² répartie sur sous-sol, rez-de-chaussée et premier étage, elle offre un parfait équilibre entre design, fonctionnalité et confort.
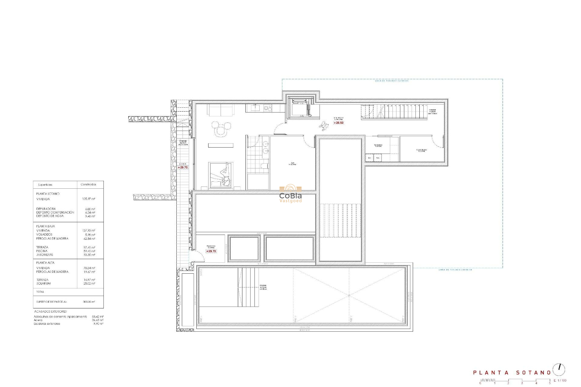
Sous-sol
Le sous-sol de 105,97 m² comprend une salle de sport entièrement équipée, buanderie et locaux techniques, avec possibilité de créer une cave à vin, un home cinéma ou un espace polyvalent. Le système de filtration et les réservoirs de la piscine y sont également installés.
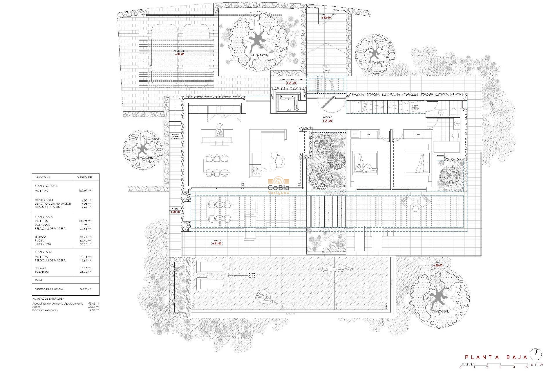
Rez-de-chaussée
Le rez-de-chaussée de 137,93 m² dispose d’un espace lumineux et ouvert comprenant salon, salle à manger et cuisine donnant sur la terrasse principale et la piscine à débordement de 59,40 m², avec vue panoramique sur la mer.
Deux chambres doubles, une salle de bain complète et des toilettes invités complètent cet étage. À l’extérieur, une pergola en bois, des terrasses et des jardins luxuriants offrent un espace de vie extérieur idéal.
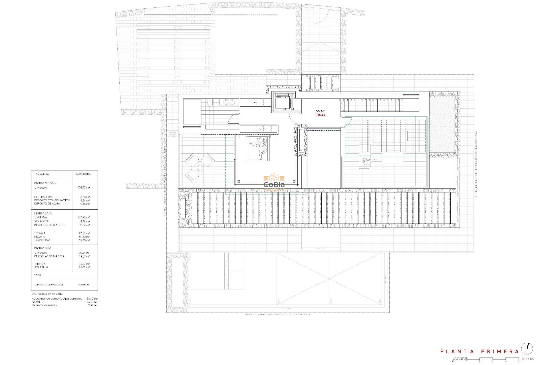
Premier étage
Le premier étage de 70,19 m² est dédié à la suite parentale avec dressing, salle de bain en suite et terrasse privée avec vue imprenable sur la mer. Une seconde chambre ou bureau complète cet étage, avec accès à un solarium de 25,02 m² pour profiter du soleil et du calme.
Extérieur et emplacement
Située dans une rue calme entourée de villas modernes, à seulement 3 minutes à pied de la plage de La Fustera, du Mandala Beach Bar & Restaurant et des services essentiels.
Cette villa met l’accent sur la lumière, l’espace et la continuité intérieur-extérieur, incarnant le style de vie méditerranéen moderne : élégant, relaxant et en parfaite harmonie avec la vue panoramique sur la mer.
💬 Assurez-vous votre villa de rêve à La Fustera, Benissa Costa et vivez le mode de vie méditerranéen ultime avec vue imprenable et confort inégalé.
CoBla Vastgoed vous aide à trouver le bien immobilier qui vous convient !