Facebook Instagram YouTube Tiktok

Appartement · Nieuwbouw Woningen #NBR-37677 Orihuela Costa · Playa Flamenca

#NBR-37677
#NBR-37677

Nieuw woonproject nabij zee in Playa Flamenca (Orihuela Costa)

Beschrijving

Kenmerken

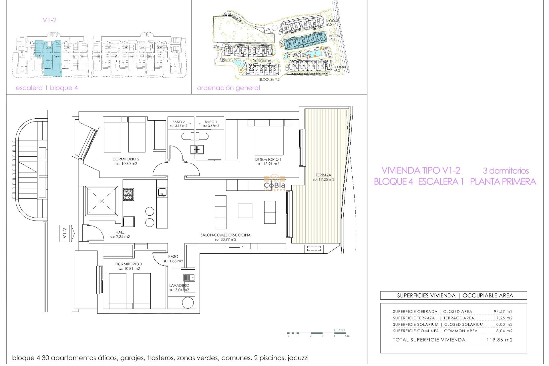
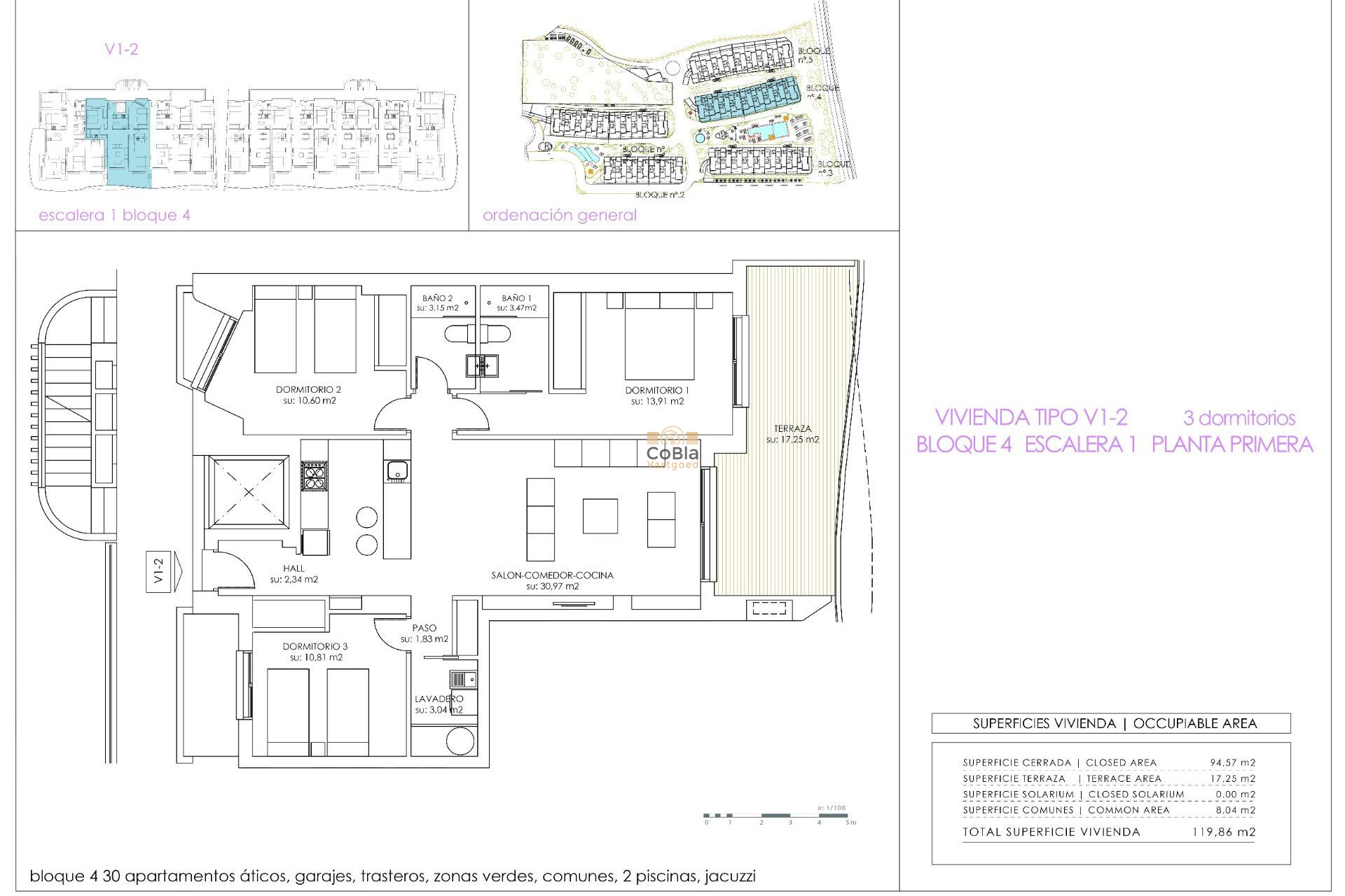
ImageSlaapkamers: 3
ImageBadkamers: 2
ImageGebouwd: 94m2
ImageTerras
ImageOpslagruimte
ImageGarage
ImageGemeenschappelijk zwembad
ImageAirconditioning pre-installatie
ImageSolarium
ImageKelder

Plaats

Meer info nodig?

Tom en Hanne helpen je graag verder
Responsable del tratamiento: CoBla Real Estate SL, Finalidad del tratamiento: Gestión y control de los servicios ofrecidos a través de la página Web de Servicios inmobiliarios, Envío de información a traves de newsletter y otros, Legitimación: Por consentimiento, Destinatarios: No se cederan los datos, salvo para elaborar contabilidad, Derechos de las personas interesadas: Acceder, rectificar y suprimir los datos, solicitar la portabilidad de los mismos, oponerse altratamiento y solicitar la limitación de éste, Procedencia de los datos: El Propio interesado, Información Adicional: Puede consultarse la información adicional y detallada sobre protección de datos Aquí.
Maak een afspraak
WhatsApp