- Tom · (+32) 499 26 26 19
- Hanne · (+34) 679 382 809
Ontdek deze exclusieve kans om een gerenoveerd appartement te bezitten in Lomas de Cabo Roig, een van de meest gewilde wijken van Orihuela Costa. Het complex, oorspronkelijk gebouwd in 2008, onderging een grondige renovatie en werd recent opgeleverd. Een modelwoning is beschikbaar voor bezichtiging om de kwaliteitsafwerking zelf te ervaren.
Vastgoedopties voor elke behoefte
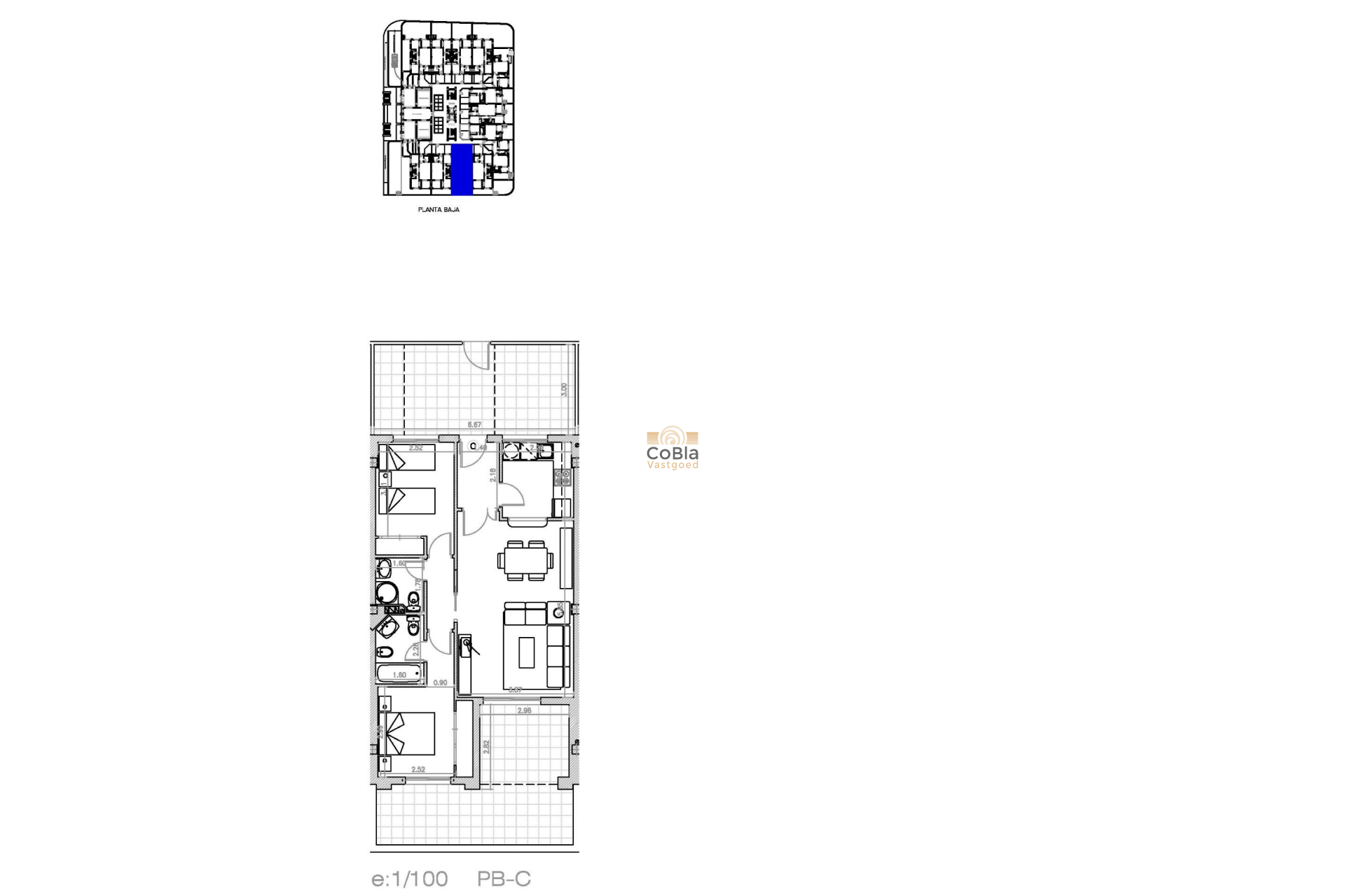
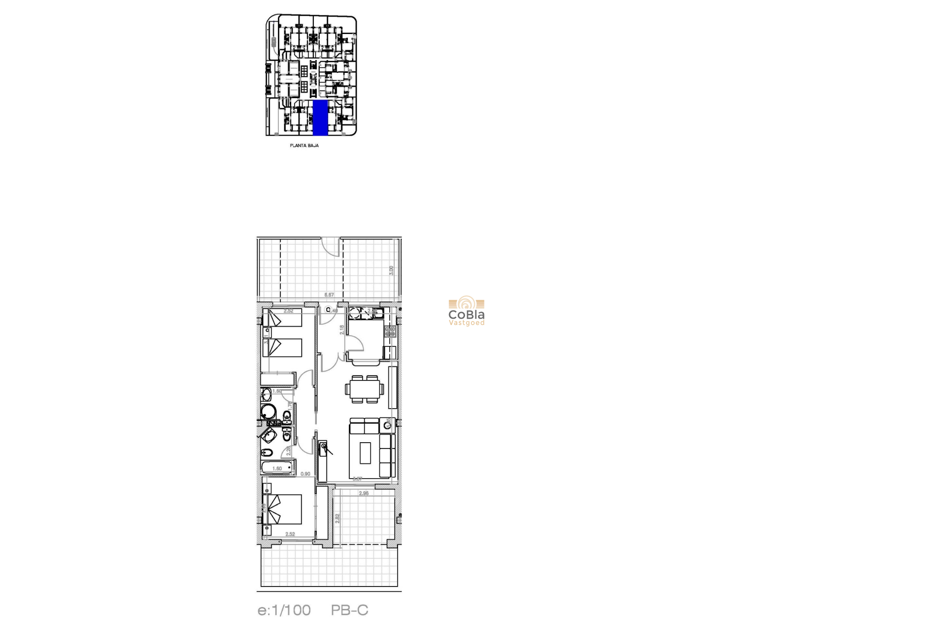
Het project biedt 27 gerenoveerde appartementen in diverse indelingen:
1- en 2-slaapkamerappartementen, ideaal als vakantiewoning of investering
Beganegrondappartementen met privétuinen, perfect voor buitenleven
Middelste verdiepingen met ruime terrassen, ideaal om van het mediterrane klimaat te genieten
Penthouses met privé solarium, open uitzicht en maximale privacy
Elke woning wordt opgeleverd met doucheschermen in de badkamers en een volledig uitgeruste keuken met inbouwapparatuur, zodat u direct kunt intrekken.
Exclusieve gemeenschapsvoorzieningen
Het wooncomplex is ontworpen voor comfort en ontspanning en beschikt over:
Een gemeenschappelijk zwembad omgeven door prachtig aangelegde tuinen
Lift voor gemakkelijke toegang tot alle verdiepingen
Optionele ondergrondse parkeerplaatsen beschikbaar tegen een meerprijs
Onovertroffen locatie in Orihuela Costa
Lomas de Cabo Roig ligt op slechts 2 km van de kustlijn van Cabo Roig, met enkele van de mooiste stranden van Orihuela Costa. Het gebied biedt uitstekende verbindingen en een breed scala aan voorzieningen, zoals winkels, restaurants, supermarkten en winkelcentra.
Stranden Cabo Roig & Campoamor: 5 minuten
Zenia Boulevard winkelcentrum: 5 km
Golfbaan Villamartín: 4 km
Vliegveld Alicante: 30 minuten
Luchthaven Murcia-Corvera: 1 uur
Slimme investering aan de Costa Blanca
Met zijn uitstekende ligging, volledig gerenoveerde appartementen en eersteklas voorzieningen is dit project ideaal voor investering, vakantie of permanente bewoning. Mis deze kans niet om een woning te bezitten in een van de meest gewilde gebieden van de Costa Blanca.
Meer informatie
Neem vandaag nog contact op met CoBla Vastgoed voor meer informatie of om een bezichtiging te plannen.