- Tom · (+32) 499 26 26 19
- Hanne · (+34) 679 382 809
Bevoorrechte locatie op 300 meter van het strand
Deze exclusieve nieuwe ontwikkeling is gelegen in La Mata, Torrevieja, een van de meest gewilde gebieden van de Costa Blanca. Slechts 300 meter van het strand, deze ontwikkeling biedt een uitzonderlijke natuurlijke omgeving met panoramisch uitzicht op zee en gemakkelijke toegang tot alle essentiële voorzieningen.
La Mata is een levendige wijk met een speciale charme, omringd door promenades, restaurants, cafés en supermarkten, waardoor het de perfecte bestemming is voor zowel het hele jaar door wonen als genieten van een tweede huis aan zee.
Modern ontwerp en energie-efficiëntie
Dit project valt op door de elegante mediterrane architectuur met een avant-gardistisch tintje. Ontworpen volgens de Passivhaus-norm, garandeert het een duurzame constructie die maximaal thermisch comfort en energie-efficiëntie biedt, waardoor het verbruik en de impact op het milieu worden verminderd.
De woningen hebben een hoogwaardige afwerking, ruime kamers en een overvloed aan natuurlijk licht, waardoor een perfecte balans wordt bereikt tussen design en functionaliteit.
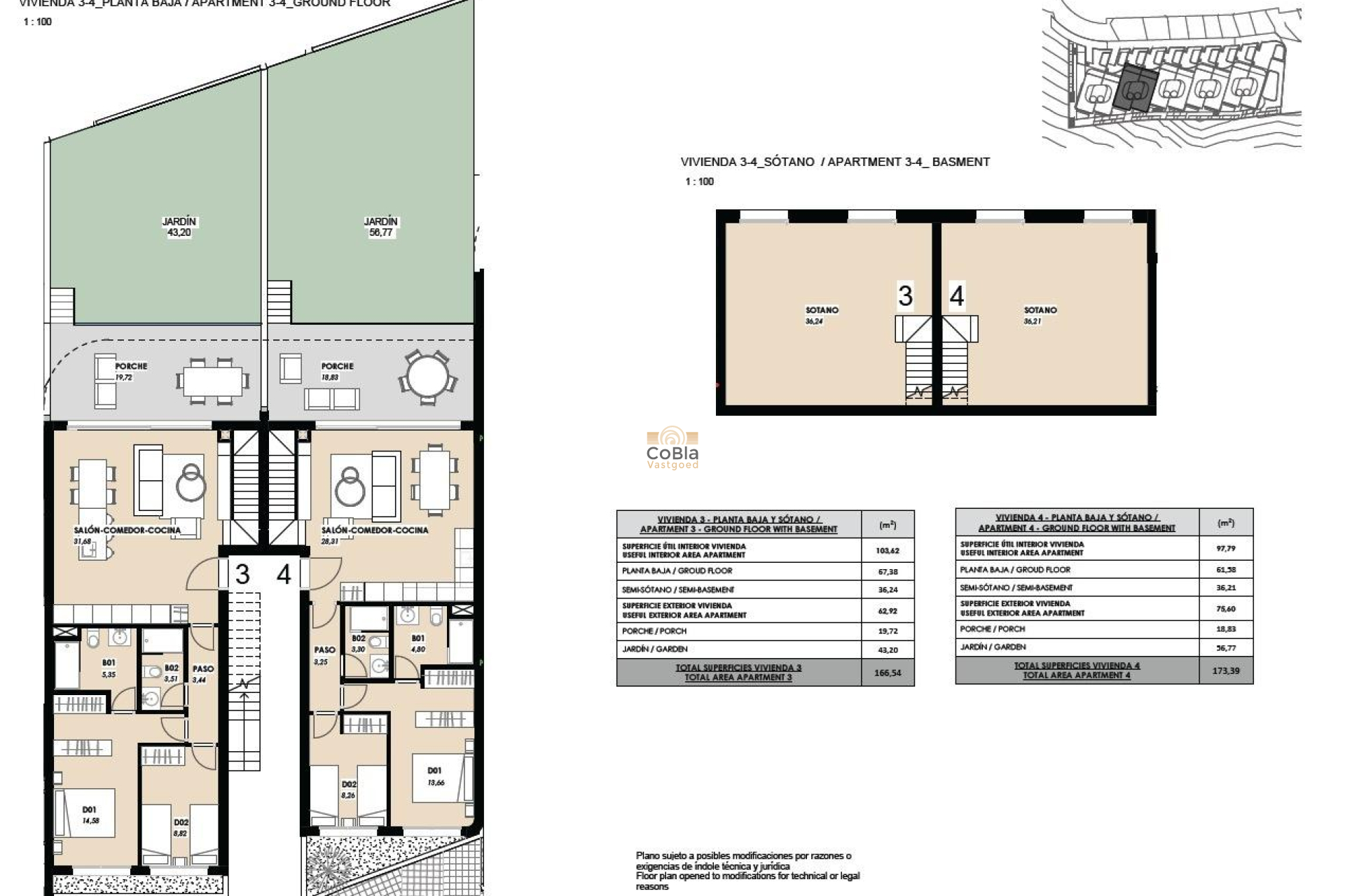
Gelijkvloerse appartementen met een grote privétuin met uitzicht op zee en genoeg ruimte voor een privézwembad. Ze hebben ook een halve kelder met de mogelijkheid om extra slaapkamers toe te voegen.
Bovenste verdieping appartementen met groot balkon, privé solarium en spectaculair uitzicht op zee, perfect om te genieten van de mediterrane zon.
Exclusieve gemeenschappelijke ruimtes
Dit project biedt ruimtes die zijn ontworpen voor comfort en ontspanning:
Nabijheid van bezienswaardigheden
Jouw thuis aan de Costa Blanca wacht op je
Als je op zoek bent naar een luxe appartement met uitzicht op zee, op een bevoorrechte locatie en met alle voorzieningen, dan is deze residentie je beste optie. Neem vandaag nog contact met ons CoBla vastgoed op voor meer informatie en om een bezichtiging te regelen.