Facebook Instagram YouTube Tiktok

Villa · Nieuwbouw Woningen #NBR-56731 Polop · Urbanizaciones

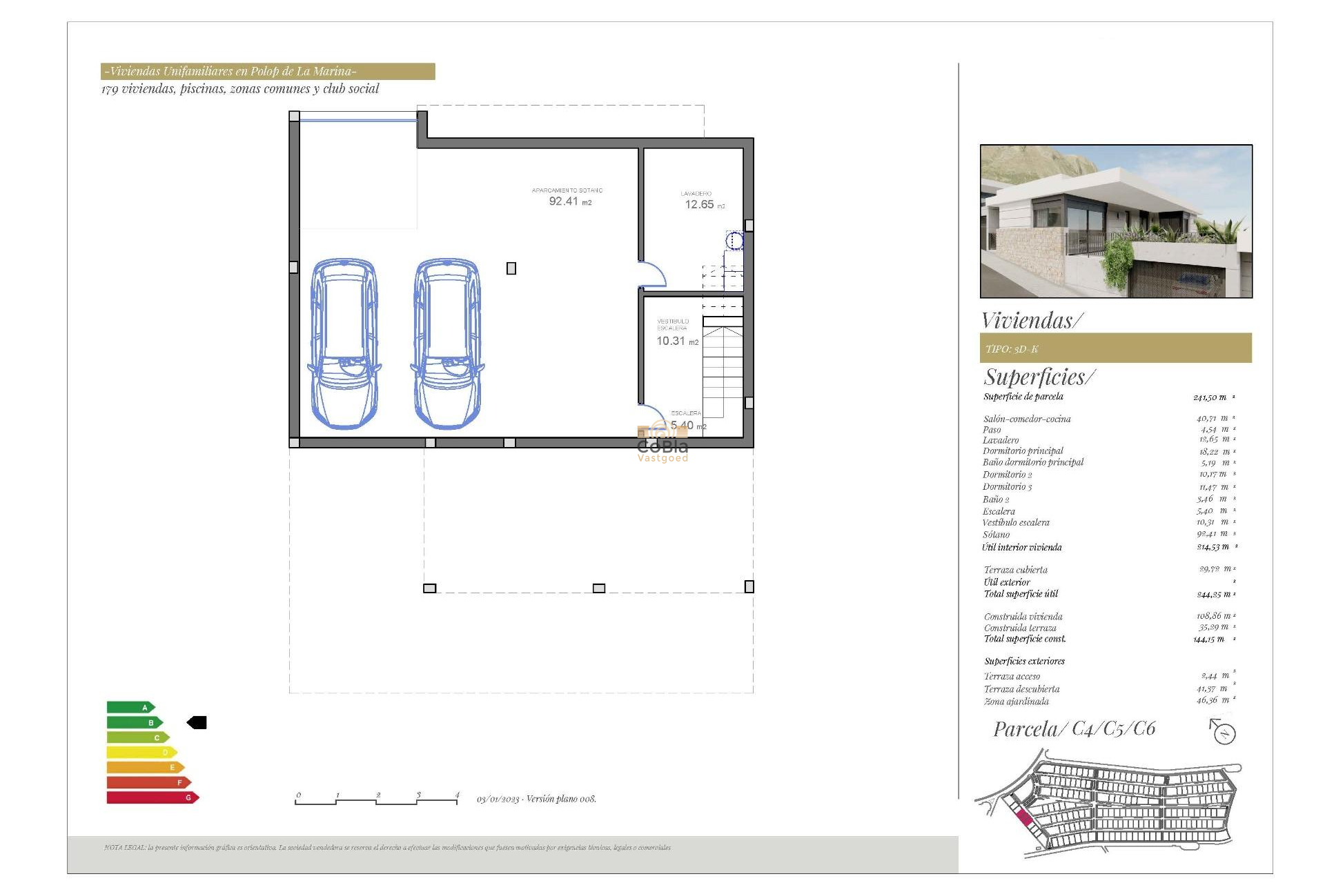
#NBR-56731
  • 200m2
  • 241m2
  • 3
  • 2
  • Privé zwembad
#NBR-56731

Vrijstaande villa's met uitzicht op zee

Beschrijving

Kenmerken

ImageSlaapkamers: 3
ImageBadkamers: 2
ImageGebouwd: 200m2
ImagePlot: 241m2
ImageZwembad: Privé zwembad
ImageTuin
ImagePrive zwembad
ImageIntercom
ImageAirconditioning pre-installatie
ImageSolarium
ImageKelder
ImageTerras
ImageOpslagruimte
ImageBalkon

Plaats

Meer info nodig?

Tom en Hanne helpen je graag verder
Responsable del tratamiento: CoBla Real Estate SL, Finalidad del tratamiento: Gestión y control de los servicios ofrecidos a través de la página Web de Servicios inmobiliarios, Envío de información a traves de newsletter y otros, Legitimación: Por consentimiento, Destinatarios: No se cederan los datos, salvo para elaborar contabilidad, Derechos de las personas interesadas: Acceder, rectificar y suprimir los datos, solicitar la portabilidad de los mismos, oponerse altratamiento y solicitar la limitación de éste, Procedencia de los datos: El Propio interesado, Información Adicional: Puede consultarse la información adicional y detallada sobre protección de datos Aquí.
Maak een afspraak
WhatsApp