- Tom · (+32) 499 26 26 19
- Hanne · (+34) 679 382 809
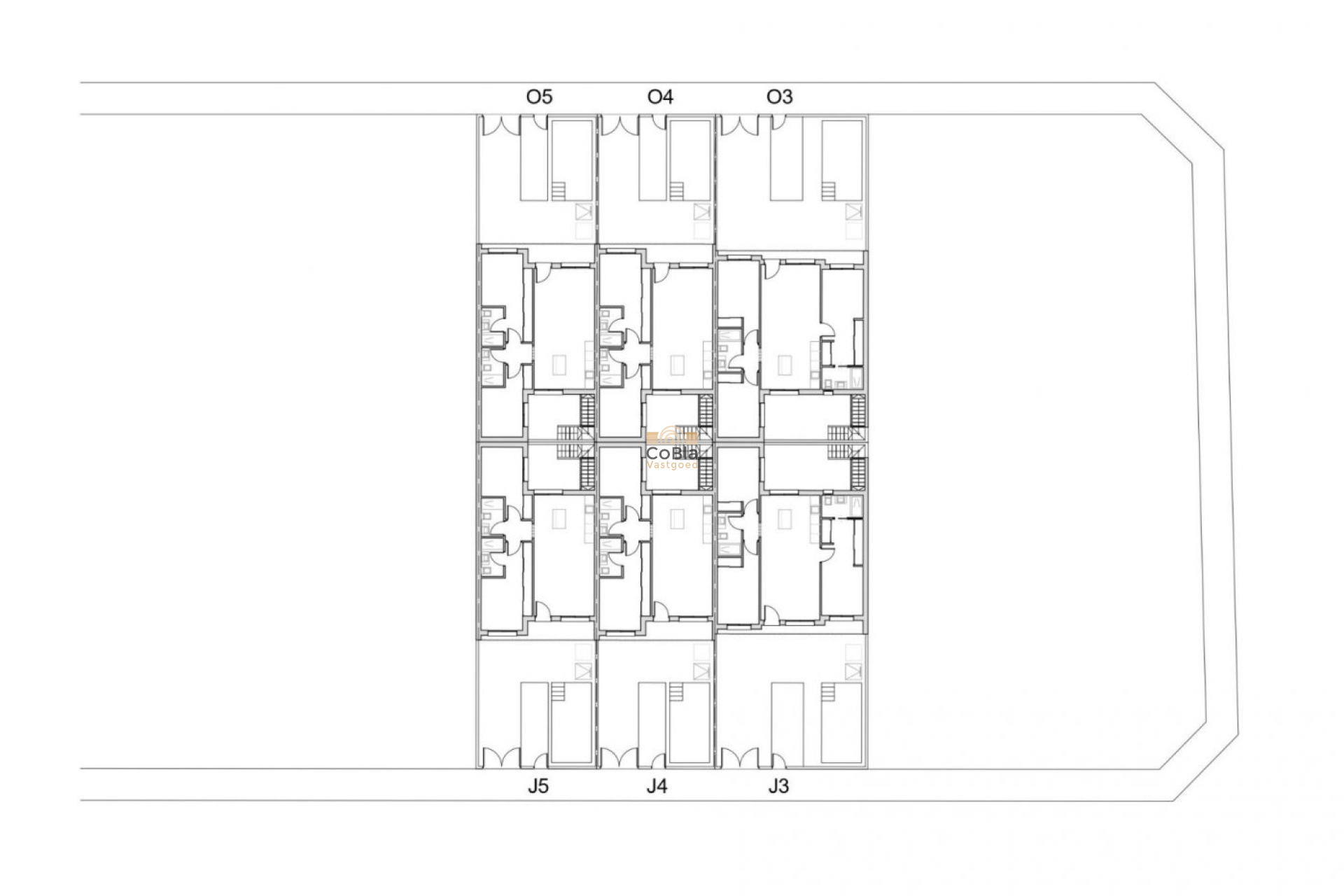
An exclusive development of 24 modern villas is being built in San Javier. Choose between single-level villas or two-storey homes, all featuring a private pool, terrace and rooftop solarium with summer kitchen — perfect for enjoying the sun all year round.
Layout options
Single level: 2 or 3 bedrooms and 2 bathrooms
Two storeys: 3 bedrooms and 3 bathrooms
Designed in a contemporary open-plan style, each villa includes a fully fitted kitchen and bright living-dining area.
Features include:
Private swimming pool with outdoor shower
Fully equipped kitchen with oven, microwave, fridge, integrated dishwasher, hob and extractor
Indoor and outdoor lighting
Built-in wardrobes with drawers
Fully fitted bathrooms
Pre-installation for ducted air conditioning
Solarium with summer kitchen
On-plot parking space
Located close to the beach, services, parks and golf courses, San Javier offers excellent amenities near the shores of the Mar Menor.
Murcia Corvera Airport – 30 minutes
Alicante Airport – 45 minutes
Contact CoBla Vastgoed for more information. We will help you find the right property.