- Tom · (+32) 499 26 26 19
- Hanne · (+34) 679 382 809
Newly built apartments in Torrevieja, just 600 metres from Playa del Cura beach
Prime location in the heart of Torrevieja
Discover these brand new apartments and penthouses in one of the most sought-after areas of Torrevieja, just 600 metres from Playa del Cura beach and 400 metres from the seafront promenade. Located in the city centre, this lively neighbourhood offers all essential amenities within walking distance, including supermarkets, shops, restaurants, cafés and public transport. Torrevieja is a well-known coastal town on the Costa Blanca, famous for its mild Mediterranean climate, lively atmosphere and year-round seaside lifestyle.
Modern apartments with spacious layouts
This exclusive new development consists of only 14 apartments and penthouses, including studios and 1 or 2-bedroom properties, designed to offer comfort, functionality and contemporary style. All homes feature an open-plan kitchen connected to the living-dining room, equipped with appliances, creating bright and welcoming interiors. The bedrooms have fitted wardrobes and the bathrooms are fully equipped with furniture, mirrors, underfloor heating and shower screens.
Quality finishes and energy-efficient features
The apartments are built with high-quality materials and a strong focus on energy efficiency. The exterior aluminium joinery includes thermal break technology and double glazing for thermal and acoustic insulation. Motorised blinds add comfort and security. Each home has pre-installation for air conditioning and ducted heating, reinforced entrance doors, a lighting pack and white lacquered interior doors. Hot water is produced by an aerothermal system, reducing energy consumption and improving sustainability.
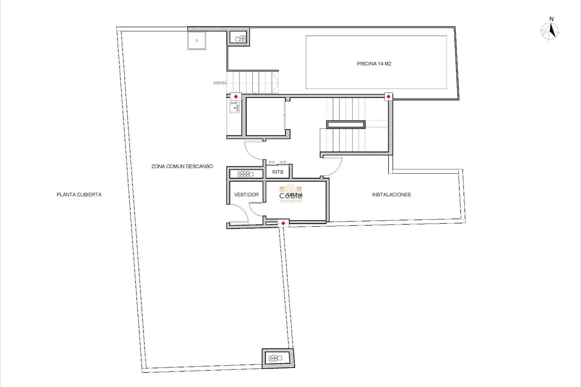
Roof-top solarium with communal swimming pool
Residents can enjoy an exclusive roof-top solarium with communal swimming pool, barbecue, sauna and sunbathing area with sun loungers, accessible by lift or stairs. This private area is perfect for relaxing, sunbathing and enjoying panoramic views of the city. It offers a peaceful retreat above the bustling streets of Torrevieja and adds significant value to the development.
Lifestyle and surroundings of Torrevieja
Torrevieja is known for its extensive coastline, sandy beaches and iconic salt flats. The Lagunas de La Mata y Torrevieja Natural Park is approximately 5 km away and offers hiking trails and unique landscapes. Several golf courses, such as Villamartin Golf and Las Colinas Golf, are between 12 and 18 km away. The marina and port of Torrevieja are approximately 1 km away. Alicante Airport is approximately 45 km away and Murcia International Airport is approximately 65 km away, both with excellent European connections.
Your home on the coast awaits
Don't miss this opportunity to purchase a modern, newly built apartment near the beach in Torrevieja. Contact us today for more information or to arrange a private viewing.