- Tom · (+32) 499 26 26 19
- Hanne · (+34) 679 382 809
Discover this exclusive development of detached villas located in the Country Club of Mazarrón, in the Murcia region. This quiet residential area is surrounded by nature and known for its relaxed atmosphere, wide streets and excellent accessibility. Its proximity to both the coast and the town of Mazarrón makes it ideal for permanent living or a holiday home.
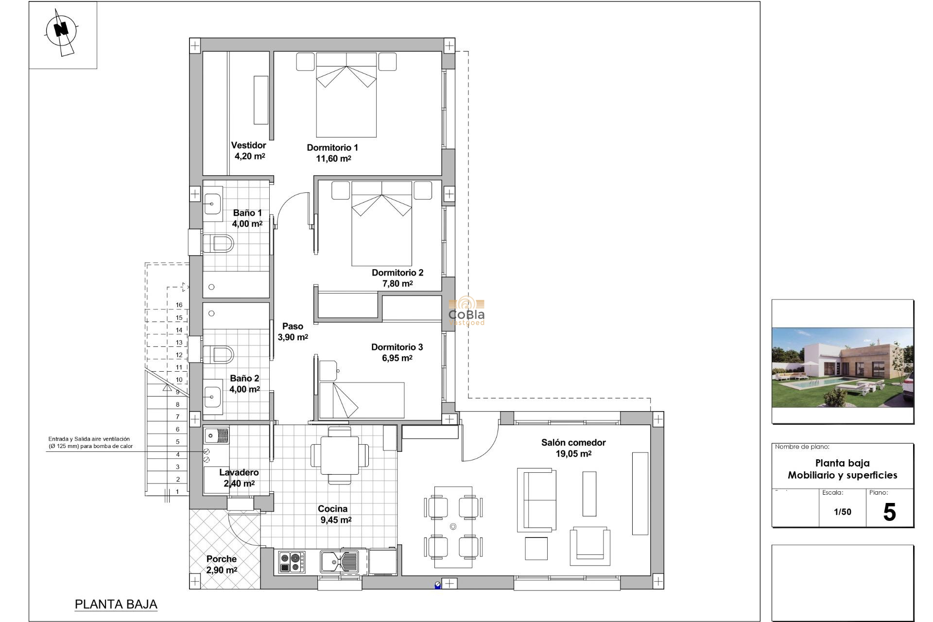
Single-level design with private outdoor spaces
All villas are designed on one level, offering comfort and practicality. The layout includes 3 spacious bedrooms and 2 bathrooms, one of them en suite. The master bedroom features a walk-in dressing room. The open-plan living area combines lounge, dining area and kitchen, with direct access to the terrace and garden. Large windows allow plenty of natural light and enhance indoor-outdoor living.
Private garden with swimming pool and parking
Each villa has a private garden with a private swimming pool and a spacious terrace, perfect for relaxing or outdoor dining. A private parking space on the plot ensures comfort and security.
Private rooftop solarium with open views
The private rooftop solarium, accessed via an external staircase, provides an additional outdoor space to enjoy the Mediterranean climate all year round. Water and electricity connections are pre-installed, ideal for a summer kitchen, outdoor shower or chill-out area, with open views of the surrounding landscape.
High-quality finishes and modern comfort
These new-build homes are constructed with high-quality materials and modern finishes. They include fitted wardrobes in all bedrooms, pre-installation for air conditioning and kitchen pre-installation, allowing buyers to personalise the interior. The contemporary design makes these homes ideal as a permanent residence, holiday home or investment.
Location close to Mazarrón and the coast
The project is located approximately 5 km from the town of Mazarrón and 9 km from the beaches of Mazarrón and Bolnuevo. All essential services such as shops, restaurants, schools and medical centres are nearby, with easy access to the motorway.
Mazarrón town: 5 km
Mazarrón & Bolnuevo beaches: 9 km
Mazarrón marina: 14 km
Golf courses: 20 km
Murcia Corvera Airport: 45 km
Cartagena: 35 km
Your home on the Costa Cálida
Enjoy privacy, comfort and outdoor living in these exclusive new-build villas in Country Club Mazarrón.
Contact CoBla Vastgoed today for more information.