- Tom · (+32) 499 26 26 19
- Hanne · (+34) 679 382 809
Discover this new residential development in Rojales, a picturesque village in the heart of the Costa Blanca.
The project offers a wide range of bungalow apartments, townhouses and semi-detached villas, all designed with contemporary architecture, quality finishes and maximum comfort in mind.
Homes for every lifestyle
Bungalow apartments with 2 or 3 bedrooms, available on two levels:
Ground floor with private garden
Top floor with private rooftop solarium
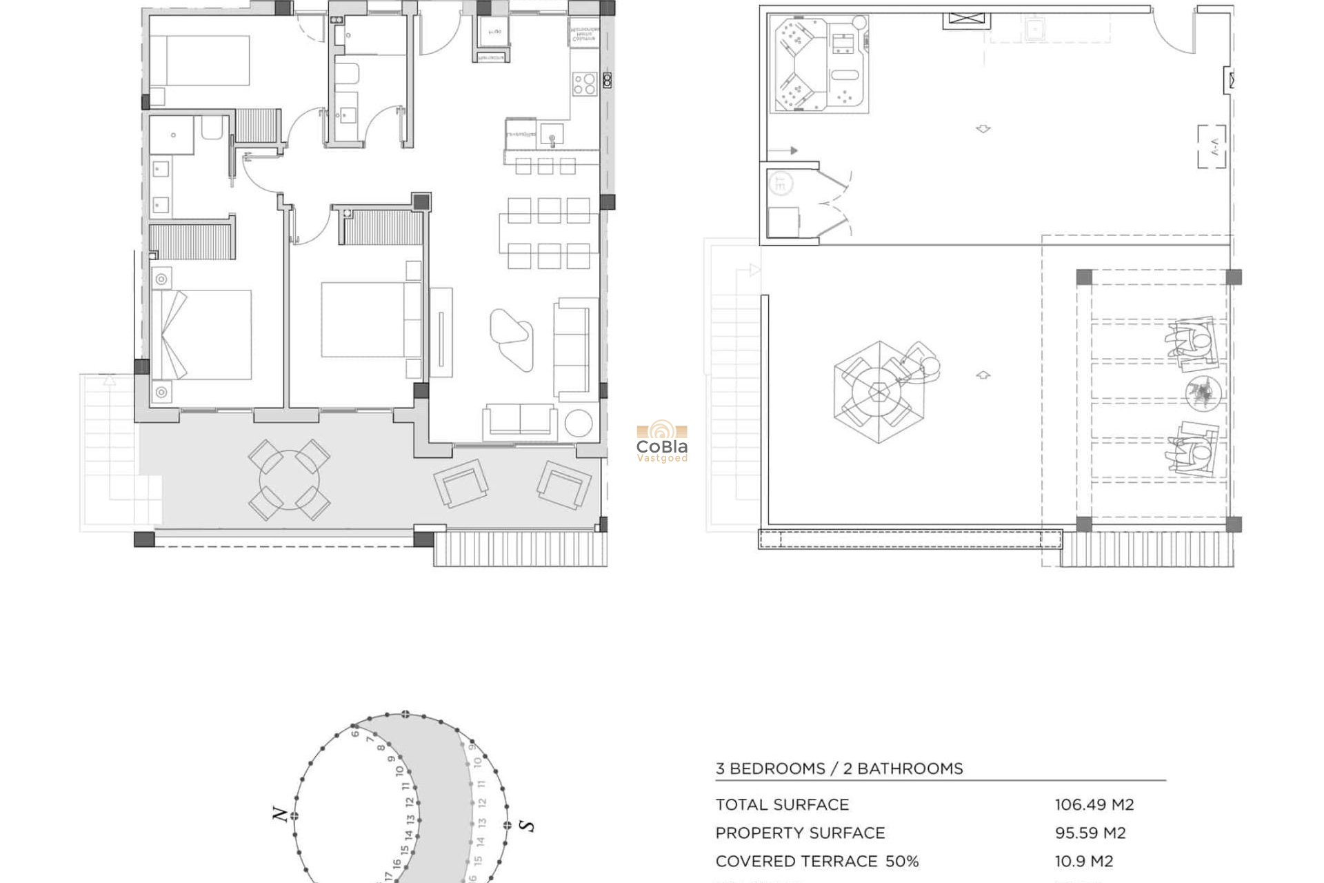
Modern townhouses built over two floors, featuring 3 bedrooms, 2 bathrooms, an open-plan kitchen and living area, built-in wardrobes, terraces, private garden and solarium.
Semi-detached villas with 3 bedrooms and 2 or 3 bathrooms, built over two floors, with spacious terraces, private garden, and rooftop solarium.
Comfortable and secure living
This private residential complex offers:
Landscaped green areas
A communal swimming pool
Private parking spaces
All designed to provide a relaxed and practical lifestyle.
Prime location and easy access
Rojales enjoys an excellent location, close to the N-332 and AP-7 motorways. The Alicante Airport is only 20 minutes away, and the beaches of Guardamar, La Mata and Torrevieja can be reached in just 15 minutes.
Nearby, you’ll find supermarkets, restaurants, health centres, golf courses and all essential amenities.
Living with character and nature
Rojales combines traditional Spanish charm with modern comfort.
Enjoy a rich gastronomic scene, a vibrant local community, and proximity to La Marquesa Golf – one of the most historic courses on the Costa Blanca, featuring 18 holes including one inspired by the famous 17th hole at Sawgrass.
👉 Would you like more information or the brochure?
Contact CoBla Real Estate today. We’ll help you find your ideal home on the Costa Blanca.