- Tom · (+32) 499 26 26 19
- Hanne · (+34) 679 382 809
From a reputable developer, we are proud to present this brand-new residential complex just 500 meters from the sea in the popular Playa Flamenca, Orihuela Costa. This modern community combines comfort, style, and an excellent location for both holidays and permanent living.
Community and amenities
The development offers beautiful communal swimming pools, jacuzzis, and landscaped gardens, perfect for relaxation and enjoying the Mediterranean climate. All daily amenities, including supermarkets, bars, and restaurants, are within walking distance, making this location both central and convenient.
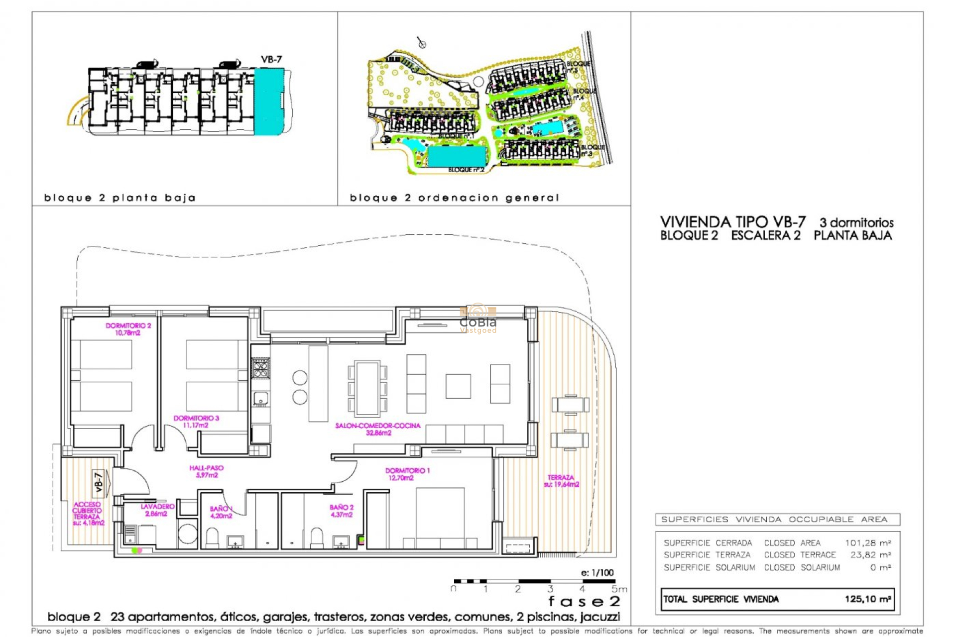
Property types and layouts
Choose from a wide variety of homes, including:
Studios
Apartments with 1, 2, or 3 bedrooms
Ground-floor units with private gardens
Top-floor apartments with private solariums
Each property includes a parking space and storage room, allowing you to move in immediately.
Location and surroundings
Just 1 km away is the famous Zenia Boulevard shopping center, ideal for shopping and entertainment. Golf enthusiasts will appreciate Villamartin Golf and Campoamor Golf within 5 km of the development. This community perfectly combines beach life, relaxation, shopping, and sports.
👉 Would you like more information or to schedule a viewing? Contact CoBla Vastgoed today and discover your new home in Playa Flamenca.