- Tom · (+32) 499 26 26 19
- Hanne · (+34) 679 382 809
This stunning new build villa offers the perfect balance of peace and security while being close to the vibrant town centre and beautiful beaches.
Single-level living for ultimate comfort
The villa is planned entirely on one level, ensuring a practical and comfortable layout. The entire plot is fenced and surrounded by a cypress hedge, providing privacy and a pleasant, green setting.
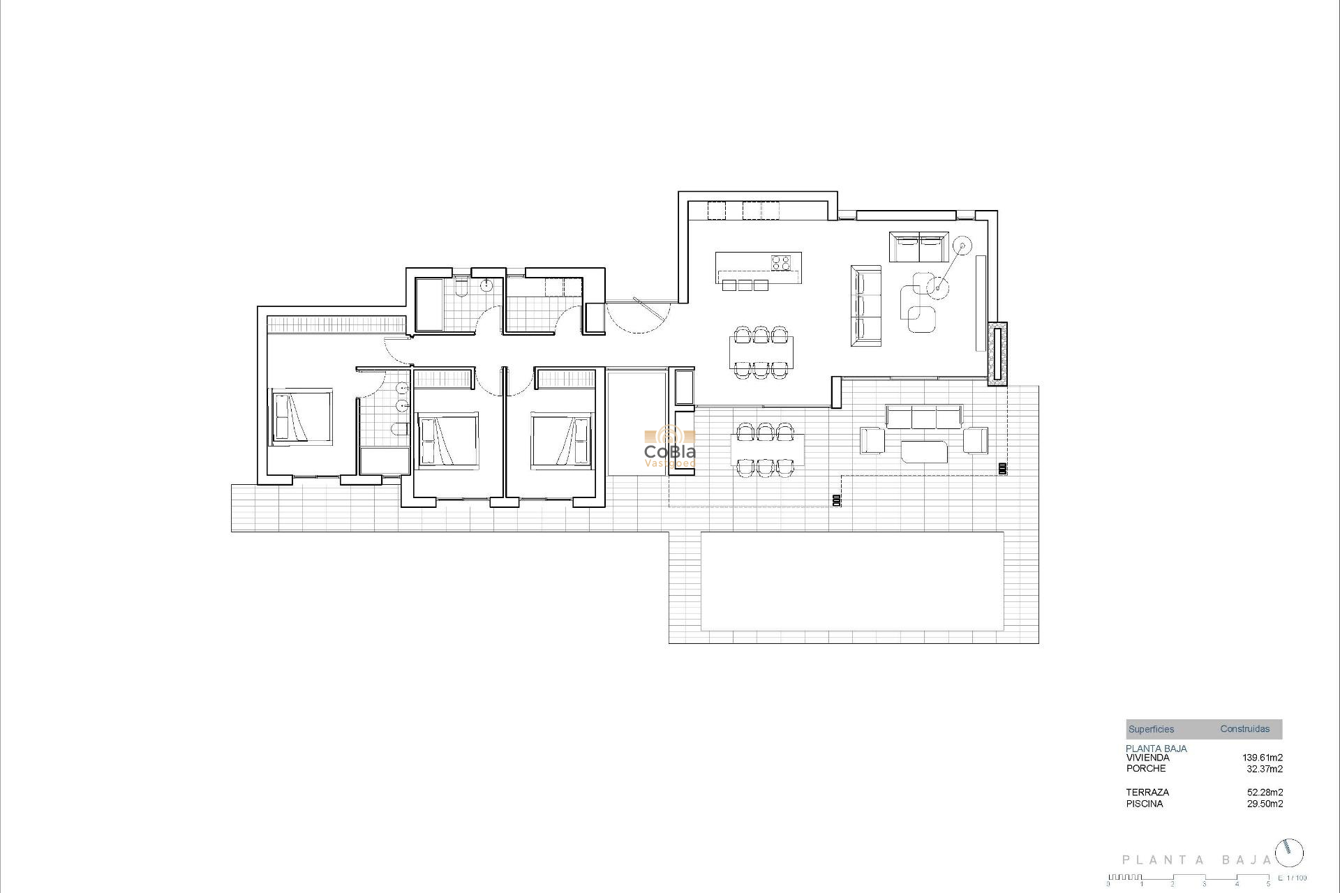
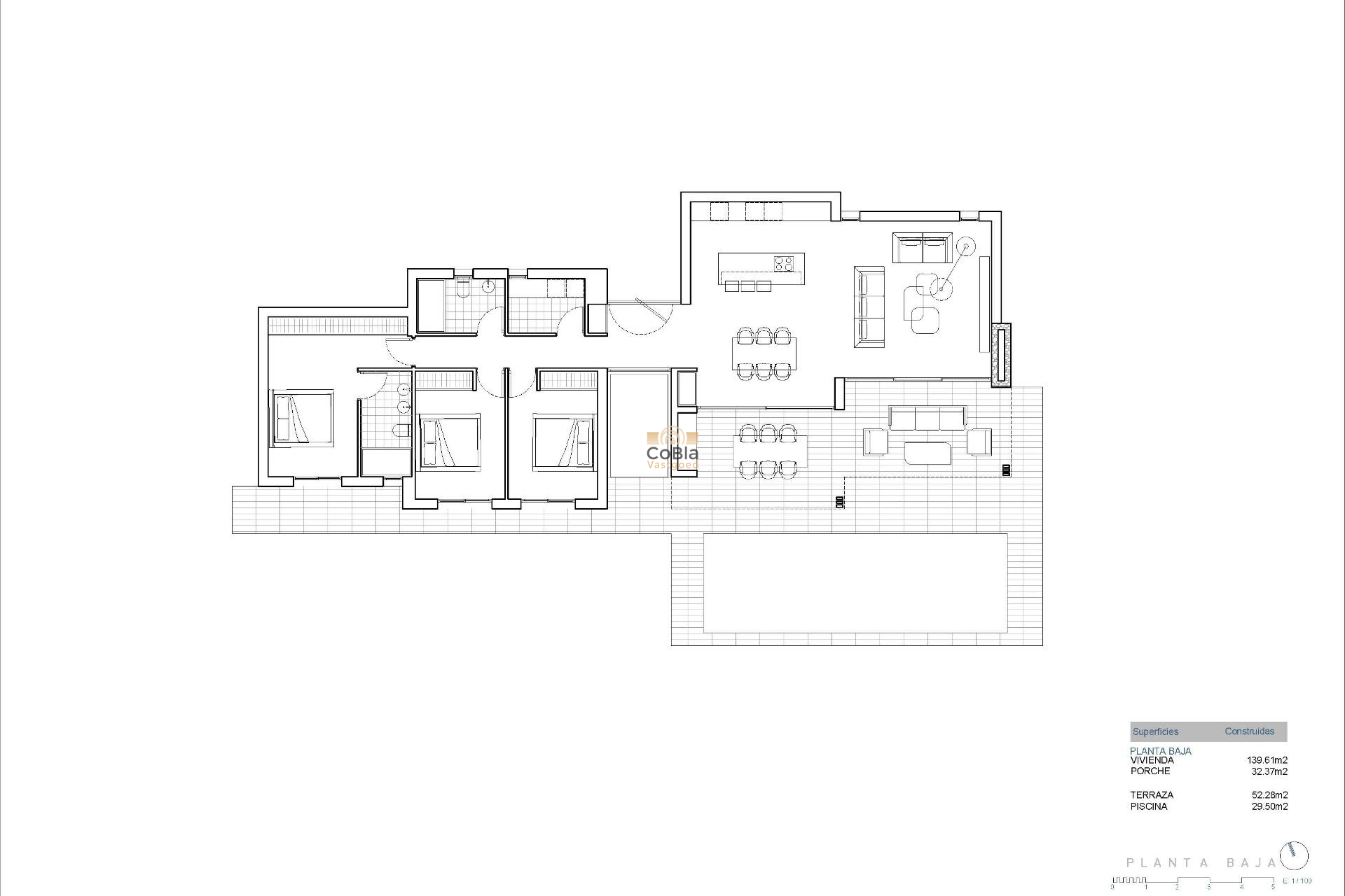
Layout
Upon entering, you step into a hallway that leads to the living area. On the left side, there’s a spacious living room with dining area and a modern open-plan kitchen with an island. From the living room, there is direct access to a covered porch with a barbecue area and a large terrace featuring a private 40 m² pool—perfect for relaxing and enjoying the Mediterranean lifestyle.
On the right side of the house is the sleeping area with four bedrooms. The master suite boasts a walk-in wardrobe and a private bathroom. There’s also a second bedroom with an en-suite bathroom, plus two additional bedrooms sharing another bathroom. A utility room completes the layout.
Outdoor space and parking
Outside, the villa offers a parking area with a sail-shaped pergola, providing covered space for two cars.
About Calpe
Calpe, located on the northern coast of Alicante province, is surrounded by charming towns like Altea, Benidorm, Teulada-Moraira, and Benissa. It offers a wonderful blend of traditional Valencian culture and modern tourist facilities. It’s the perfect base for exploring the region or simply enjoying the stunning sandy beaches—Calpe boasts three of the finest beaches along the coast.
The town also has two yacht clubs: Real Club Náutico de Calpe and Club Náutico Puerto Blanco. Once a fishing village, Calpe has transformed into a popular tourist hotspot, easily accessible via the A7 motorway and the N332 coastal road. Alicante airport is approximately an hour’s drive away, while Valencia airport is around an hour and a half.
Please contact CoBla Vastgoed for more information. We are happy to assist you in your search for the right property.