- Tom · (+32) 499 26 26 19
- Hanne · (+34) 679 382 809
Bungalows neufs à vendre à Pilar de la Horadada, à 3 km de la plage
Complexe résidentiel boutique à Pilar de la Horadada
Découvrez ce complexe résidentiel exclusif de bungalows modernes situés à Pilar de la Horadada, la ville la plus au sud de la Costa Blanca. Ce projet boutique se compose de seulement 14 maisons soigneusement conçues, avec 2 ou 3 chambres et 2 salles de bains, offrant une combinaison idéale de confort, de style et de mode de vie méditerranéen.
Le complexe est situé dans un quartier résidentiel calme, à quelques pas du centre-ville, ce qui permet aux résidents de profiter d'un accès facile aux commerces, restaurants, supermarchés et services essentiels. Pilar de la Horadada est connue pour son atmosphère accueillante, son charme espagnol traditionnel et sa rue principale animée, regorgeant de cafés, de boutiques et de charmantes places.
Bungalows modernes avec espaces extérieurs privés
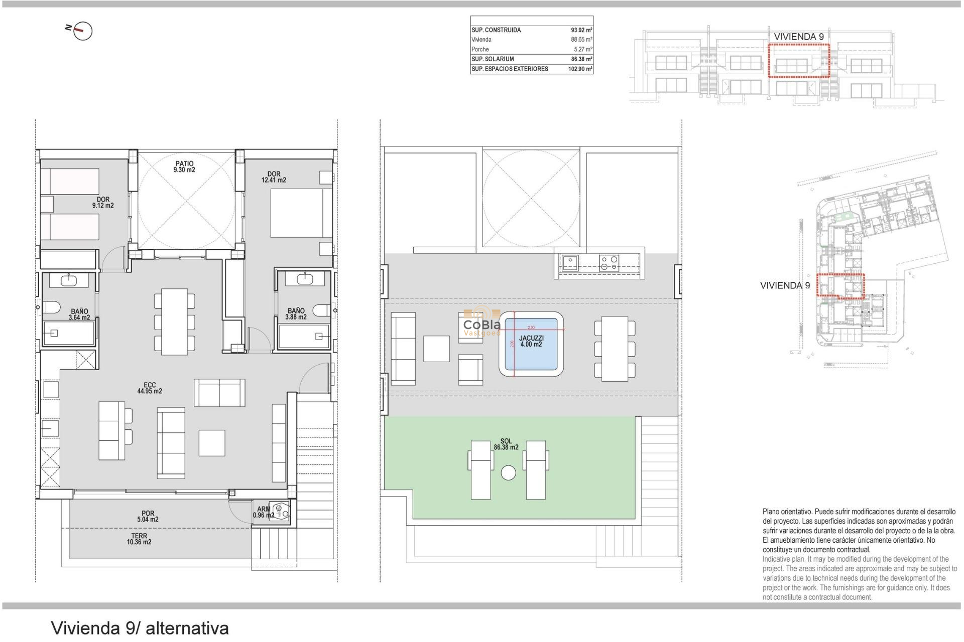
Les maisons ont été conçues pour offrir des intérieurs lumineux et des agencements fonctionnels, parfaits pour une utilisation permanente ou comme résidence secondaire.
Les bungalows du rez-de-chaussée disposent d'un jardin privé et d'une piscine privée, créant ainsi le cadre idéal pour profiter de la vie en plein air, prendre des bains de soleil ou recevoir famille et amis.
Les bungalows du dernier étage comprennent une terrasse spacieuse et un solarium privé sur le toit. Le solarium est équipé d'une cuisine d'été et offre la possibilité d'ajouter une piscine privée ou un jacuzzi moyennant un supplément, ce qui en fait un espace idéal pour se détendre tout en profitant du climat méditerranéen chaud et d'une vue dégagée.
Chaque propriété comprend une place de parking privée au sein du complexe résidentiel pour plus de commodité.
Construction de qualité et équipements modernes
Ces maisons neuves sont construites avec des matériaux de qualité et des installations modernes conçues pour garantir confort et efficacité énergétique tout au long de l'année.
Menuiserie extérieure en aluminium avec rupture thermique
Cuisines entièrement équipées avec appareils électroménagers inclus
Salles de bains équipées de miroirs et de parois de douche
Éclairage LED intérieur et extérieur
Système d'eau chaude avec technologie aérothermique à haut rendement énergétique
Pré-installation pour la climatisation canalisée
La combinaison d'un design moderne et d'équipements pratiques fait de ces maisons une excellente option pour les acheteurs à la recherche d'une propriété contemporaine sur la Costa Blanca.
Excellent emplacement à proximité des plages et des terrains de golf
Pilar de la Horadada bénéficie d'un emplacement stratégique à proximité de certaines des meilleures plages et terrains de golf de la région.
Plage de Torre de la Horadada 3 km
Plage de Mil Palmeras 3 km
Lo Romero Golf 6 km
Aéroport international de la région de Murcie 45 km
Aéroport d'Alicante Elche 75 km
La région offre également d'excellentes liaisons routières vers les villes côtières, les marinas et les installations de loisirs voisines, ce qui en fait un point de départ idéal pour explorer la Costa Blanca et la Costa Calida.
Trouvez votre nouvelle maison sur la Costa Blanca
Si vous recherchez un bungalow moderne de construction récente près de la plage, doté d'excellentes commodités et bénéficiant d'un emplacement fantastique, ce complexe résidentiel à Pilar de la Horadada est une opportunité exceptionnelle. Contactez-nous dès aujourd'hui pour obtenir plus d'informations ou pour organiser une visite.