- Tom · (+32) 499 26 26 19
- Hanne · (+34) 679 382 809
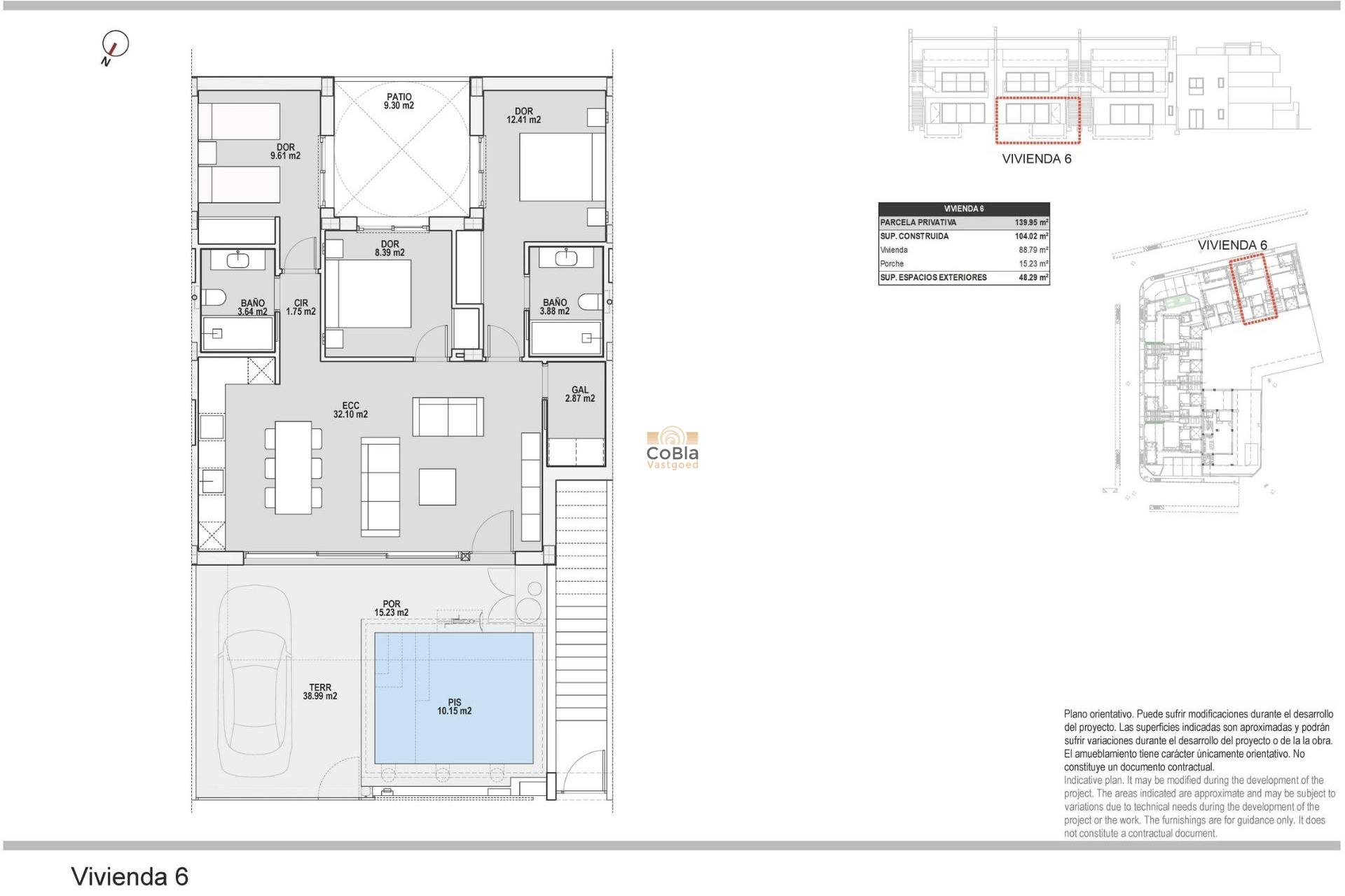
À Pilar de la Horadada, la ville la plus au sud de la Costa Blanca, un nouveau projet résidentiel boutique de bungalows modernes est en cours de construction. Ce projet exclusif comprend seulement 14 logements élégants avec 2 ou 3 chambres et 2 salles de bains, conçus pour profiter pleinement du style de vie méditerranéen.
Les habitations sont situées dans un quartier résidentiel calme à distance de marche du centre-ville, où vous trouverez commerces, restaurants, supermarchés et toutes les commodités.
Bungalows avec espaces extérieurs privés
Les logements sont conçus pour offrir luminosité, espace et fonctionnalité, idéals pour une résidence principale ou secondaire.
Les bungalows au rez-de-chaussée disposent d’un jardin privé avec piscine privée, parfait pour profiter de la vie en plein air.
Les bungalows à l’étage offrent une grande terrasse et un solarium privé sur le toit avec cuisine d’été. Il est possible d’ajouter une piscine ou un jacuzzi en option pour profiter pleinement du climat méditerranéen.
Chaque logement dispose également d’une place de parking privée dans le complexe.
Finitions modernes et confort
Les habitations sont construites avec des matériaux modernes et des installations énergétiques efficaces pour garantir un confort optimal.
Caractéristiques principales :
Menuiseries aluminium avec rupture de pont thermique
Cuisine entièrement équipée avec électroménagers
Salles de bains avec miroirs et parois de douche
Éclairage LED intérieur et extérieur
Système d’eau chaude par technologie aérothermique
Pré-installation pour climatisation gainable
Situation idéale près des plages et des golfs
Pilar de la Horadada bénéficie d’une excellente situation proche des plages et des golfs de la région.
Plage de Torre de la Horadada et Plage de Mil Palmeras – 3 km
Lo Romero Golf – 6 km
Aéroport international de Murcie – 45 km
Aéroport d’Alicante – 75 km
La région offre également de bonnes connexions vers les villes côtières, les marinas et les zones de loisirs, ce qui en fait un point de départ idéal pour découvrir la Costa Blanca et la Costa Cálida.
Contactez CoBla Vastgoed pour plus d’informations.