- Tom · (+32) 499 26 26 19
- Hanne · (+34) 679 382 809
Cette villa moderne clé en main est située à La Alberca, un quartier résidentiel calme de Polop, entouré de forêts et de montagnes. Sa position élevée offre des vues panoramiques sur la mer Méditerranée, les montagnes et le centre historique de Polop. La villa combine intimité, tranquillité et excellentes connexions avec la côte et les villes voisines.
Polop est un charmant village de la région Marina Baixa sur la Costa Blanca, réputé pour son caractère traditionnel et son cadre naturel. Les commerces, restaurants, installations sportives et écoles de La Nucia sont à proximité, tandis que les plages et villes côtières animées sont à quelques minutes en voiture.
Agencement spacieux : Rez-de-chaussée, Sous-sol et Solarium
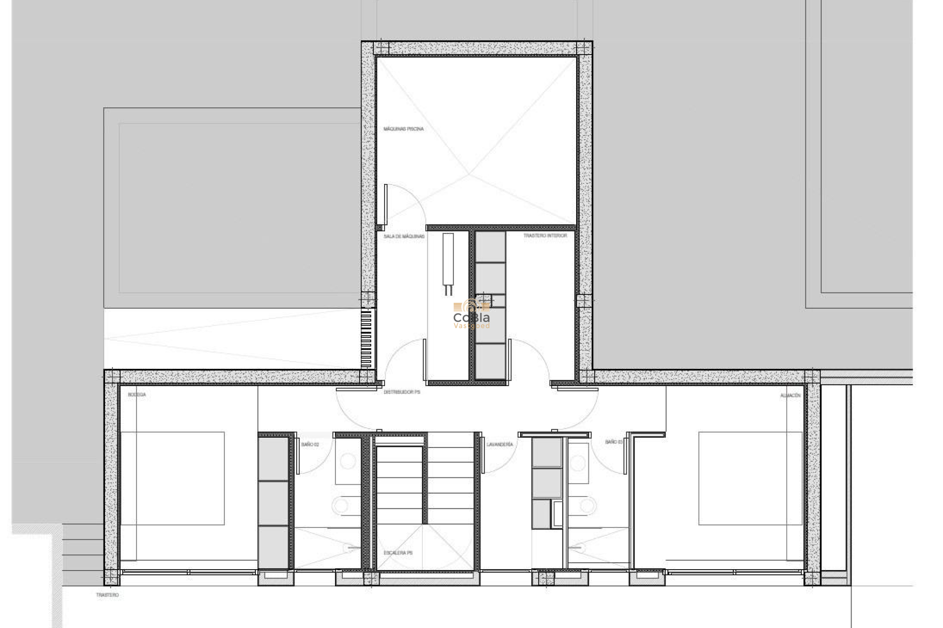
La villa dispose d’un rez-de-chaussée, d’un sous-sol et d’un solarium sur le toit, offrant un espace de vie flexible :
Rez-de-chaussée : hall avec placard intégré, 2 chambres avec salle de bain privative, dont une suite principale avec balcon Juliette et terrasse. Séjour et salle à manger ouverts donnant sur terrasse pergola couverte et piscine privée d’eau salée.
Sous-sol : 2 chambres supplémentaires avec salle de bain, salle de jeux/cinéma avec raccordements pour bar, buanderie équipée, 2 pièces techniques de rangement.
Solarium sur le toit : grand espace extérieur avec vues panoramiques sur la mer, préparé pour panneaux solaires. Cuisine extérieure, armoires de rangement et jardin méditerranéen avec irrigation automatique complètent l’extérieur.
Prestations haut de gamme et efficacité énergétique
La villa dispose de finitions premium et installations modernes :
Îlot central de cuisine avec appareils intégrés BOSCH
Plans de travail en pierre naturelle intérieurs et extérieurs
Préparation pour chauffage au sol
Système de climatisation aérothermique Mitsubishi
Classe énergétique A
Préparation pour système domotique
Piscine d’eau salée avec chauffage optionnel
Parking privé pour 2 véhicules
Grandes fenêtres anti-soleil pour lumière naturelle, confort et sécurité
Emplacement idéal et distances
Centre de Polop : 2 km
La Nucia : 4 km
Benidorm : 12 km
Altea : 10 km
Plages : 10 km
Villaitana Golf : 14 km
Aéroport d’Alicante : 65 km
Assurez votre maison de rêve à Polop
Cette villa clé en main exceptionnelle combine intimité, design et vues panoramiques dans l’une des zones les plus prisées de l’intérieur de la Costa Blanca. Contactez CoBla Vastgoed pour une visite privée et faites de cette villa de luxe votre nouveau chez-vous.