- Tom · (+32) 499 26 26 19
- Hanne · (+34) 679 382 809
Appartements neufs de charme à Jávea, près de la plage et du centre-ville
Une vie exclusive sur la Costa Blanca Nord
Ce nouveau complexe résidentiel de charme est situé à Jávea, sur la très prisée Costa Blanca Nord. Conçu pour profiter de la lumière naturelle, de la tranquillité et de la vie en plein air, le projet allie l'élégance méditerranéenne à une architecture contemporaine dans l'un des quartiers les plus prisés de la région.
Entouré par le paysage époustouflant du parc naturel du Montgó et à seulement 1 300 mètres de la plage, le complexe bénéficie d'un microclimat unique avec plus de 300 jours de soleil par an. Le centre-ville se trouve à seulement 500 mètres, ce qui permet d'accéder facilement aux supermarchés, restaurants, pharmacies, commerces locaux et à la gare routière.
22 maisons uniques avec espaces extérieurs privés
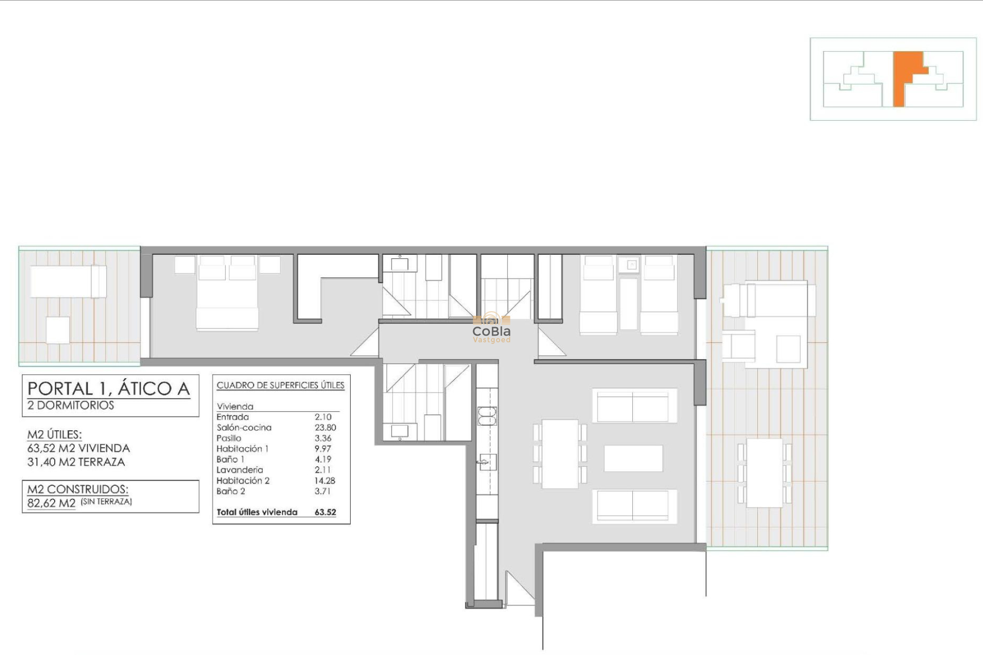
Ce complexe résidentiel privé et sécurisé se compose de seulement 22 appartements exclusifs de 2 et 3 chambres, judicieusement répartis sur trois niveaux pour s'adapter à différents styles de vie.
Les appartements du rez-de-chaussée bénéficient de jardins privés.
Les appartements du premier étage disposent de terrasses spacieuses, idéales pour se détendre et prendre ses repas en plein air.
Les penthouses offrent de grandes terrasses ouvertes avec de belles vues dégagées.
Toutes les propriétés comprennent une place de parking privée et un débarras au sous-sol, garantissant confort et praticité.
Spécifications de haute qualité et efficacité énergétique
Les maisons sont livrées avec des finitions haut de gamme et une cote énergétique A, alliant confort et durabilité. Les caractéristiques comprennent :
Climatisation canalisée entièrement installée
Système aérothermique pour l'eau chaude
Volets motorisés dans les salons
Porte d'entrée renforcée
Cuisines équipées avec appareils électroménagers
Salles de bains avec parois de douche
Panneaux solaires photovoltaïques pour la consommation commune
Le complexe a été conçu pour minimiser les coûts d'entretien et les charges communes, ce qui le rend idéal pour y vivre toute l'année ou comme investissement.
Espaces communs conçus pour le bien-être
Les résidents peuvent profiter de jardins paysagers et d'une piscine commune au sein de cette communauté fermée. La conception favorise l'intimité, la détente et le contact avec la nature, offrant une atmosphère paisible à proximité de la mer et des montagnes.
Emplacement privilégié à proximité des plages, du golf et de la marina
Jávea est connue pour sa charmante vieille ville, ses magnifiques criques et sa marina animée. Le port de Jávea, situé à proximité, propose des activités nautiques et des restaurants en bord de mer, tandis que plusieurs terrains de golf sont facilement accessibles.
Distances par rapport aux principaux points d'intérêt
Plage 1,3 km
Centre-ville de Jávea 0,5 km
Port de Jávea 2 km
Javea Golf 5 km
La Sella Golf 10 km
Aéroport d'Alicante 100 km
Aéroport de Valence 115 km
Un investissement sûr et un style de vie exceptionnel
Avec une forte demande nationale et internationale, ce projet immobilier représente une opportunité exceptionnelle de vivre ou d'investir à Jávea. Contactez-nous dès aujourd'hui pour recevoir plus d'informations ou pour organiser une visite privée de ce projet boutique exclusif.
527