- Tom · (+32) 499 26 26 19
- Hanne · (+34) 679 382 809
Ce projet de construction neuve élégant est développé en trois phases, en commençant par la phase 1 située au sud, comprenant six villas modernes et spacieuses. Il est situé dans le quartier charmant de Dolores, un environnement résidentiel calme et agréable, bien desservi.
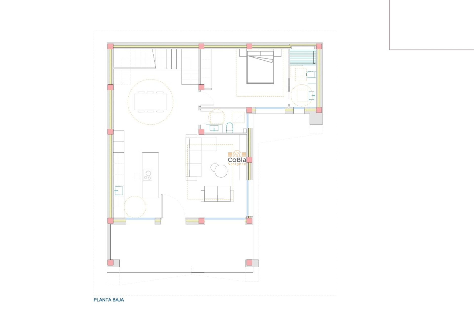
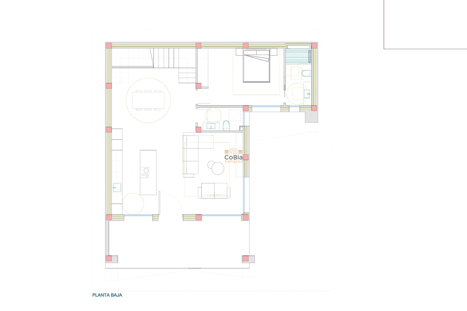
Les villas ont été conçues avec une attention particulière portée au confort, à l’espace et à la luminosité. Au rez-de-chaussée, vous trouverez un vaste séjour avec de grandes baies vitrées, un coin TV convivial et une cuisine ouverte avec îlot central, électroménagers intégrés et bar petit-déjeuner. Un WC invités ainsi qu’une chambre double avec salle de bain en suite complètent ce niveau.
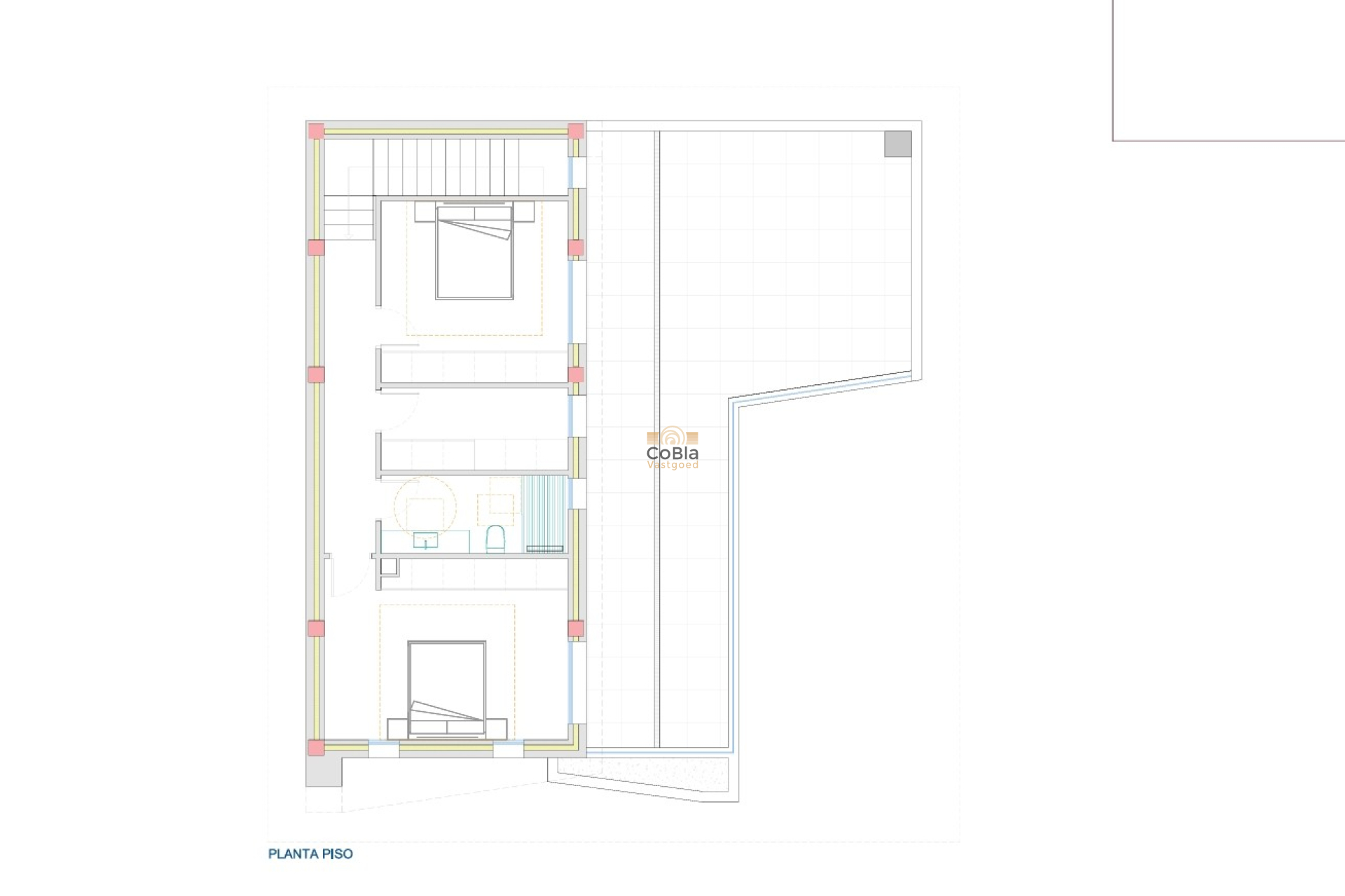
À l’étage, la villa dispose de deux chambres doubles spacieuses, d’une salle de bain familiale et d’une buanderie séparée. La surface construite est d’environ 165 m², sur des parcelles d’environ 260 m², offrant un confort optimal à l’intérieur comme à l’extérieur.
Chaque villa comprend un sous-sol technique, livré brut et aménageable en option. À l’extérieur, vous profitez de plusieurs terrasses, d’une piscine privée, d’un parking sur la parcelle et d’une agréable vue sur le parc urbain. L’agencement soigné garantit une excellente luminosité naturelle.
Les villas sont équipées de menuiseries en aluminium avec volets roulants électriques, d’une porte d’entrée sécurisée et de la climatisation au rez-de-chaussée et à l’étage, permettant une occupation immédiate.
👉 Souhaitez-vous recevoir plus d’informations, les plans ou connaître les disponibilités ?
Contactez CoBla Immobilier, nous vous accompagnerons avec plaisir.