Facebook Instagram YouTube Tiktok

Villa · Nouvelle construction #NBR-53208 Ciudad Quesada · La Marquesa Golf

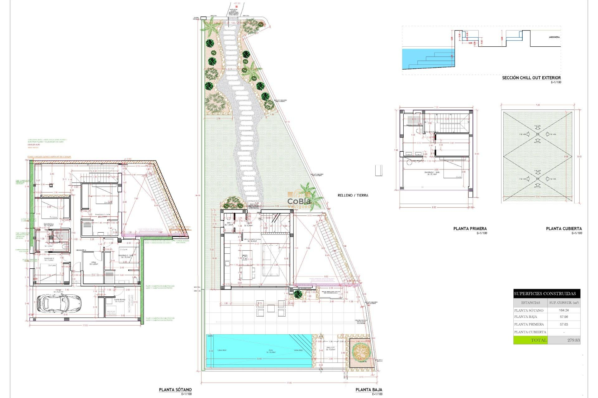
#NBR-53208
  • 280m2
  • 390m2
  • 4
  • 4
  • Piscine privée

La description

Les caractéristiques

ImageChambres: 4
ImageSalles de bain: 4
ImageConstruit: 280m2
ImageParcelle: 390m2
ImagePiscine: Piscine privée
ImagePré-installation de climatisation
ImageSolarium
ImageSous-sol
ImagePièce de stockage
ImagePiscine privée

Emplacement

Besoin de plus d'informations ?

L'équipe Cobla est là pour vous
Responsable del tratamiento: CoBla Real Estate SL, Finalidad del tratamiento: Gestión y control de los servicios ofrecidos a través de la página Web de Servicios inmobiliarios, Envío de información a traves de newsletter y otros, Legitimación: Por consentimiento, Destinatarios: No se cederan los datos, salvo para elaborar contabilidad, Derechos de las personas interesadas: Acceder, rectificar y suprimir los datos, solicitar la portabilidad de los mismos, oponerse altratamiento y solicitar la limitación de éste, Procedencia de los datos: El Propio interesado, Información Adicional: Puede consultarse la información adicional y detallada sobre protección de datos Aquí.
PRENDRE RENDEZ-VOUS
WhatsApp