- Tom · (+32) 499 26 26 19
- Hanne · (+34) 679 382 809
Découvrez ces 2 villas neuves exclusives dans un quartier résidentiel calme à Torrevieja, à seulement 15 minutes à pied (5 minutes en voiture) de la célèbre plage de La Mata.
Architecture contemporaine et espaces généreux
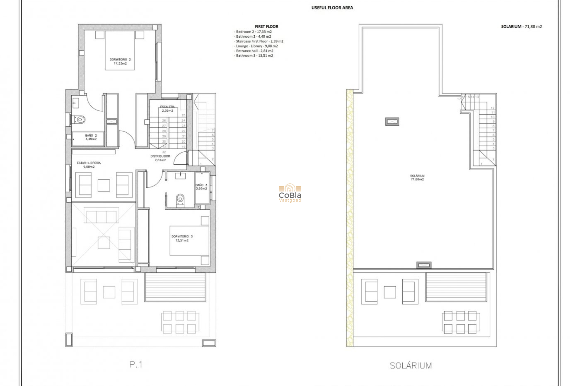
Chaque villa est conçue dans un style moderne, avec de grands espaces lumineux et fonctionnels. Avec 4 chambres et 4 salles de bain, elles conviennent parfaitement aux familles, aux séjours entre amis ou comme investissement.
Rez-de-chaussée : cuisine ouverte reliée au séjour-salle à manger, armoires encastrées, accès direct au jardin privé avec piscine et stationnement sur la parcelle.
Étage : chambres supplémentaires avec salles de bain et accès au grand solarium privé – idéal pour profiter du soleil ou recevoir des invités.
Sous-sol : espace polyvalent, parfait pour aménager une chambre d’amis, une salle de sport, une salle de jeux ou du rangement.
Finitions de qualité
Cuisine ouverte entièrement équipée
Piscine privée et jardin
Armoires encastrées dans les chambres
Solarium privé et sous-sol
Parking privé sur la parcelle
Vivre à Torrevieja
Torrevieja est une ville espagnole dynamique de la Costa Blanca, réputée pour son climat méditerranéen, ses plages de sable et ses promenades en bord de mer.
Le Musée de la Mer et du Sel retrace l’histoire de la pêche et du sel de la ville. À proximité, le parc naturel Lagunas de La Mata y Torrevieja offre des sentiers de randonnée autour de deux lacs salés étonnants – l’un rose, l’autre vert.
Distances :
Playa de La Mata : 1,2 km (15 min à pied / 5 min en voiture)
Centre de Torrevieja : 5 km
Parc naturel Lagunas de La Mata : 2 km
Aéroport d’Alicante : 40 min
Aéroport de Murcie (Corvera) : 1 h
Votre villa sur la Costa Blanca
Ces villas neuves spacieuses offrent confort, intimité et un emplacement privilégié près de la mer et de toutes commodités.
👉 Contactez CoBla Vastgoed dès aujourd’hui. Nous vous accompagnons personnellement et trouvons avec vous la maison qui correspond à vos besoins.